立即预约 立即预约
免费定制整装家居

免费定制整装家居

一站置家 全程无忧 一省到底
hide.png

当前位置: 首页 > 装修案例效果图 > 保利达江湾城

保利达江湾城 110平 现代简约风格效果图

收藏
案例风格 现代简约 案例户型 三居 案例面积 110平米
楼盘名称 保利达江湾城 设计师 林凤设计师 案例类型 改善性住宅

设计理念:本案是现代简约风格,整体空间设计以实用为主,合理规划屋内动线,合理利用有限空间做出充足收纳。以黑白灰色系勾勒整体画面,线条轻快明朗。

客厅
第1张
第2张
第3张
第4张
餐厅
第1张
第2张
卧室
第1张
第2张
第3张
第4张
第5张
卫生间
第1张
厨房
第1张
衣帽间
第1张
第2张
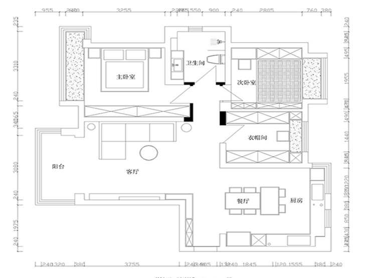
户型图
第1张
  • 案例详情

保利达江湾城-110-现代-客厅.jpg 保利达江湾城-110-现代-电视背景.jpg 保利达江湾城-110-现代-沙发背景.jpg 保利达江湾城-110-现代-电视背景1.jpg

保利达江湾城110平现代风格三室两厅林凤装饰的客厅整体色系以灰色调为主,搭配黑色,白色,木色,米色的材质让整体色系都属于中性色内,柔和舒适,石材的背景墙让整体空间简单奢华。

保利达江湾城-110-现代-餐厅.jpg 保利达江湾城-110-现代-餐厅1.jpg

保利达江湾城110平现代风格三室两厅林凤装饰的餐厅空间在厨房中心,连接岛台实用美观,让人一进入房间就可以感受到宽敞高级的感觉。

保利达江湾城-110-现代-次卧室.jpg 保利达江湾城-110-现代-主卧室.jpg 保利达江湾城-110-现代-次卧室1.jpg 保利达江湾城-110-现代-主卧室1.jpg 保利达江湾城-110-现代-主卧室2.jpg

保利达江湾城110平现代风格三室两厅林凤装饰的卧室床尾做整体衣柜,收纳空间充足,床头选择情报的床头,让整体空间更合理,两侧的壁灯营造出温馨的灯晃氛围。

保利达江湾城-110-现代-卫生间.jpg

保利达江湾城110平现代风格三室两厅林凤装饰的卫生间灰色的理石纹理瓷砖,搭配上黑色的浴室柜体让整体空间高级感爆棚。

保利达江湾城-110-现代-厨房.jpg

保利达江湾城110平现代风格三室两厅林凤装饰的厨房橱柜采用香槟色肌肤感橱柜,整体干净奢华,开放式厨房,让客厅和餐厅厨房的通透性更强。

保利达江湾城-110-现代-衣帽间.jpg 保利达江湾城-110-现代-衣帽间1.jpg

保利达江湾城110平现代风格三室两厅林凤装饰的衣帽间

保利达江湾城-110-现代-平面图.jpg

案例设计师

林凤设计师

设计师:林凤设计师

从业时间:5年

设计理念:经验和习惯的沉淀,时尚与美观的结合

预约设计师

算算你家装修多少钱

报名即享丰厚赠品,品质装修

免费报价
咨询热线:400-656-9909
20190221103704574636.jpg

精品设计案例

20180612134930523248.jpg 服务号二维码.jpg