立即预约 立即预约
免费定制整装家居

免费定制整装家居

一站置家 全程无忧 一省到底
hide.png

当前位置: 首页 > 装修案例效果图 > 龙湖唐宁one

龙湖唐宁one 112平 港式风格效果图

收藏
案例风格 港式 案例户型 三居 案例面积 112平米
楼盘名称 龙湖唐宁one 设计师 郑婷婷 案例类型 改善性住宅

设计理念:若将整个居室的室内设计比喻成一部耐人寻味的电影的话,那么家居设计就是这电影中时时出现在关键时刻的电影配乐,或者说插曲。电影插曲总在最打动人心的时刻出现,有着画龙点睛的作用。家居饰品也一样,它点染居室的风格,烘托居室的格调,平衡居室内色彩、图案、明暗、大小等多方关系,是室内装修中不可或缺的重要组成部分.

客厅
第1张
第2张
第3张
第4张
餐厅
第1张
卧室
第1张
第2张
卫生间
第1张
儿童房
第1张
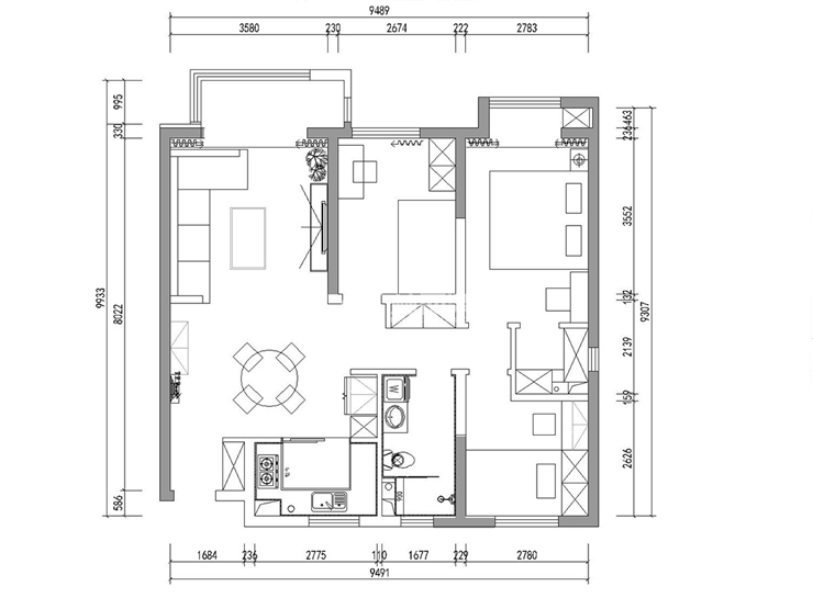
户型图
第1张
  • 案例详情

龙湖唐宁ONE-112平-港式风格-客厅 (2).jpg 龙湖唐宁ONE-112平-港式风格-客厅 (3).jpg 龙湖唐宁ONE-112平-港式风格-客厅 -首图.jpg 龙湖唐宁ONE-112平-港式风格-客厅.jpg

客厅搭配色彩冷静、线条简单,相对于欧式而言更注重家居装饰的质感而非造型,是一种整体架构偏冷静的家居格调。本案配合一些合适的软装饰品来协调、中和这种硬朗感。

龙湖唐宁ONE-112平-港式风格-餐厅.jpg

港式家居里有一个细节需要你仔细搭配、精心挑选,那就是餐桌上的餐具。在港式设计里面,家居中的用料、家具等大多精良,因而,在餐具上面也应该选择那些精致的瓷器、陶艺与之匹配。色彩和造型上不妨丰富一些,深红色、宝蓝色、深灰色、深紫色,都不会让你的餐厅失去原有的高贵感觉。

龙湖唐宁ONE-112平-港式风格-主卧.jpg 龙湖唐宁ONE-112平-港式风格-榻榻米.jpg

布艺主要是沙发靠垫和床上用品在发挥作用。一般港式家居的沙发多采用灰暗或者素雅的色彩和图案,所以,沙发靠垫应该尽可能地调节沙发的刻板印象,色彩可以跳跃一些,但不要太过,只需比沙发本身的颜色亮一点儿。床上用品可以运用多种面料来实现层次感和丰富的视觉效果,比如羊毛制品、毛皮等,高雅大方,既调节卧室或者客厅的整体印象,又与整个居室协调一致。

龙湖唐宁ONE-112平-港式风格-卫生间.jpg 龙湖唐宁ONE-112平-港式风格-儿童房.jpg 龙湖唐宁ONE-112平-港式风格-平面图.jpg

案例设计师

郑婷婷

设计师:郑婷婷

从业时间:9年

设计理念:用心与住宅对话,交织出住宅中的灵魂所属

预约设计师

算算你家装修多少钱

报名即享丰厚赠品,享半价装修

免费报价
咨询热线:400-656-9909
20190221103704574636.jpg

精品设计案例

20180612134930523248.jpg 服务号二维码.jpg