立即预约 立即预约
免费定制整装家居

免费定制整装家居

一站置家 全程无忧 一省到底
hide.png

当前位置: 首页 > 装修案例效果图 > 碧桂园名门

碧桂园名门 166平 现代简约风格效果图

收藏
案例风格 现代简约 案例户型 四居 案例面积 166平米
楼盘名称 碧桂园名门 设计师 高阳 案例类型 改善性住宅

设计理念:家,源于业主对生活方式理想的样子。我们了解空间的使用以及屋主的生活习惯,根据动线、尺寸、比例,利用颜色和材质凸显每个空间的特质,去创造出合理、舒适、优美的居住环境。

客厅
第1张
第2张
第3张
餐厅
第1张
卧室
第1张
卫生间
第1张
厨房
第1张
门厅
第1张
过廊
第1张
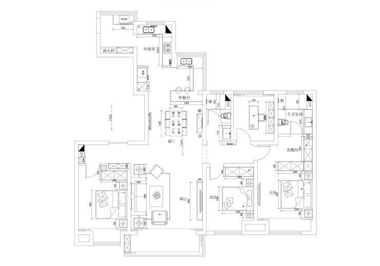
户型图
第1张
  • 案例详情

碧桂园名门-166平米-现代风格-背景墙.jpg 碧桂园名门-166平米-现代风格-客厅.jpg 碧桂园名门-166平米-现代风格-沙发背景墙.jpg

碧桂园名门166平四室两厅现代风格林凤装饰的客厅在木坐与石材的使用下,整个空间变现出沉静、舒适的生活品质,通过材质直观的呈现出来的优雅。

碧桂园名门-166平米-现代风格-餐厅.jpg

碧桂园名门166平四室两厅现代风格林凤装饰餐厨以开放式的布局,用餐和吧台等复合功能,形成清晰的动线空间。

碧桂园名门-166平米-现代风格-卧室.jpg

碧桂园名门166平四室两厅现代风格林凤装饰卧室用不同材质的明暗灰度让卧室的层次感大大增强,再用软装的巧妙搭配营造出高端大气的氛围。

碧桂园名门-166平米-现代风格-卫生间.jpg

碧桂园名门166平四室两厅现代风格林凤装饰卫生间延续了简约的味道,材质的运用,体现业主的品味。

碧桂园名门-166平米-现代风格-厨房.jpg

碧桂园名门166平四室两厅现代风格林凤装饰厨房

碧桂园名门-166平米-现代风格-门厅.jpg

碧桂园名门166平四室两厅现代风格林凤装饰玄关

碧桂园名门-166平米-现代风格-过廊.jpg

碧桂园名门166平四室两厅现代风格林凤装饰过廊

碧桂园名门-166平米-现代风格-平面布局.jpg

案例设计师

高阳

设计师:高阳

从业时间:11年

设计理念:有限空间、无限设计。

预约设计师

算算你家装修多少钱

报名即享丰厚赠品,品质装修

免费报价
咨询热线:400-656-9909
20190221103704574636.jpg

精品设计案例

20180612134930523248.jpg 服务号二维码.jpg