立即预约 立即预约
免费定制整装家居

免费定制整装家居

一站置家 全程无忧 一省到底
hide.png

当前位置: 首页 > 装修案例效果图 > 碧桂园名门

碧桂园名门 195平 轻奢风格效果图

收藏
案例风格 轻奢 案例户型 四居 案例面积 195平米
楼盘名称 碧桂园名门 设计师 林凤装饰设计师 案例类型 改善性住宅

设计理念:本案以轻奢港式温馨色调为主,空间要明亮时尚轻奢感。所以,将色调设计定位于温馨色于浅灰色,客厅地面主要以浅灰色地砖,使平淡的空间中,增加温馨时尚感。

客厅
第1张
第2张
餐厅
第1张
卧室
第1张
卫生间
第1张
第2张
厨房
第1张
书房
第1张
儿童房
第1张
户型图
第1张
  • 案例详情

碧桂园名门-195平-现代轻奢-客厅1.jpg 碧桂园名门-195平-现代轻奢-首图.jpg

碧桂园名门195平四室两厅现代轻奢风格林凤装饰的客厅浅灰色地砖将总体餐厅客厅厨房连贯效果。客厅和餐厅都用了深色的瓷砖做收边、这样会更加凸出区域划分、层次感更加的丰富、区域感更加强。客厅沙发灰色布艺风格,搭配其他色彩靠垫,提高空间色彩,沙发包裹感墙,最大的亮点莫过于即时尚又大气的电视背景,整体背景采用高档天然石材做装饰,上悬下空用电视柜做陪衬,再配上嵌入式的电视,使一家人在客厅空间尽显舒适。

碧桂园名门-195平-现代轻奢-餐厅.jpg

碧桂园名门195平四室两厅现代轻奢风格林凤装饰的餐厅于厨房想连接,为了让家人就餐时感觉空间宽敞,餐厅背景是以艺术拼接水印镜片做装饰,再配上美观的时尚餐边柜,宽敞明亮的同时尽显时尚美观。

碧桂园名门-195平-现代轻奢-主卧室.jpg

碧桂园名门195平四室两厅现代轻奢风格林凤装饰的主卧室灰色白色板材拼接设计墙面,质感强,温馨好打理。皮质床头舒适柔软,床头精致的垂钓灯更加抢眼,时尚并实用的飘窗设计更加让卧室增加惬意温馨效果。

碧桂园名门-195平-现代轻奢-卫生间1.jpg 碧桂园名门-195平-现代轻奢-卫生间.jpg

碧桂园名门195平四室两厅现代轻奢风格林凤装饰的卫生间墙面铺设仿大灰色理石纹理瓷砖铺贴使空间呈现高档大气效果,洗漱柜暖色理石台面温馨好打理。

碧桂园名门-195平-现代轻奢-厨房.jpg

碧桂园名门195平四室两厅现代轻奢风格林凤装饰的是半开放式厨房,餐厅厨房视觉荣威一体,呈现空间最大化,厨房灰色白色吸塑造型明,干净的直线条搭配理石台面,提示橱柜档次,墙面防理石瓷砖干净简洁,让业主有个愉快的烹饪空间。

碧桂园名门-195平-现代轻奢-书房.jpg

碧桂园名门195平四室两厅现代轻奢风格林凤装饰的书房

碧桂园名门-195平-现代轻奢-儿童房.jpg

碧桂园名门195平四室两厅现代轻奢风格林凤装饰的儿童房

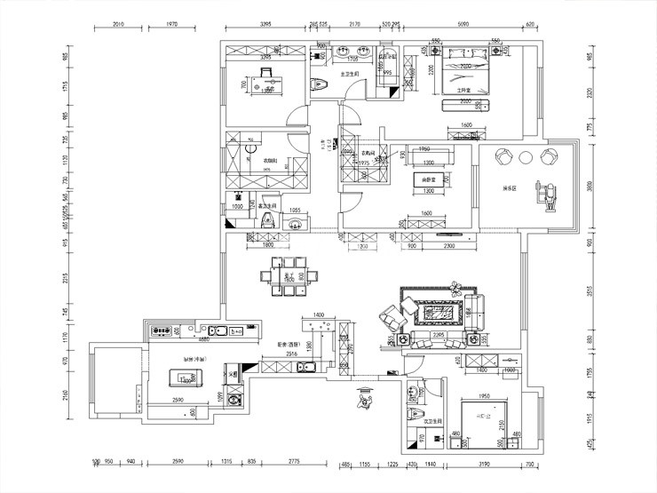
碧桂园名门-195平-现代轻奢-平面图.jpg

案例设计师

林凤装饰设计师

设计师:林凤装饰设计师

从业时间:10年

设计理念:用设计改变生活方式是为了努力去创造一种更好的生活状态!

预约设计师

算算你家装修多少钱

报名即享丰厚赠品,品质装修

免费报价
咨询热线:400-656-9909
20190221103704574636.jpg

精品设计案例

20180612134930523248.jpg 服务号二维码.jpg