立即预约 立即预约
免费定制整装家居

免费定制整装家居

一站置家 全程无忧 一省到底
hide.png

当前位置: 首页 > 装修案例效果图 > 金辉优步湖畔

金辉优步湖畔 117平 现代简约风格效果图

收藏
案例风格 现代简约 案例户型 三居 案例面积 117平米
楼盘名称 金辉优步湖畔 设计师 林凤装饰设计师 案例类型 改善性住宅

设计理念:年龄只是个数字,为所喜爱的不断努力,心之所向,追求极致。

客厅
第1张
第2张
第3张
餐厅
第1张
第2张
卧室
第1张
卫生间
第1张
厨房
第1张
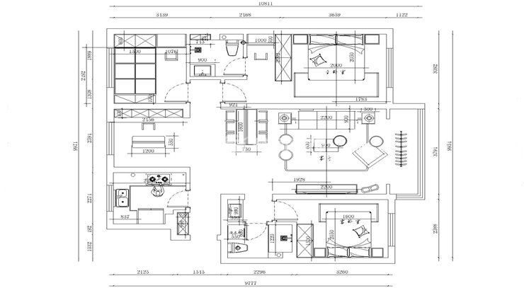
户型图
第1张
  • 案例详情

金辉优步湖畔-117平-现代风格-客厅1.jpg 金辉优步湖畔-117平-现代风格-首图.jpg 金辉优步湖畔-117平-现代风格-客厅2.jpg

金辉优步湖畔117平三室两厅现代风格林凤装饰的客厅空间主色调为深色,家具选用金属以及黑色进行搭配,并且部分墙面摒弃了传统的挂画配饰,采用线条简单的壁灯做装饰,空间内没有突出的亮色,不过深浅色的搭配让空间整体化。整体格局结合业主需求,做了相应的改动,最大化利用空间。

金辉优步湖畔-117平-现代风格-餐厅2.jpg 金辉优步湖畔-117平-现代风格-餐厅1.jpg

金辉优步湖畔117平三室两厅现代风格林凤装饰的餐厅区域与客厅区域紧密连,改动后的格局餐厅与客厅整体感更强,空间利用相对更为合理,动线更舒适。

金辉优步湖畔-117平-现代风格-主卧室.jpg

金辉优步湖畔117平三室两厅现代风格林凤装饰的卧室空间颜色相对客厅来说颜色更浅,浅色使空间在视觉上显得更宽敞,精神更放松,打造宜居,舒适的休息空间。

金辉优步湖畔-117平-现代风格-卫生间.jpg

金辉优步湖畔117平三室两厅现代风格林凤装饰的卫生间采用的墙地砖颜色比较深,打造略带轻奢质感的洗手间,利用墙体空间做壁龛,更大化空间利用率。

金辉优步湖畔-117平-现代风格-厨房.jpg

金辉优步湖畔117平三室两厅现代风格林凤装饰的厨房是封闭式厨房,将冰箱以及蒸箱烤箱做嵌入式,不仅实用还增加美观度,通过整体规划,使动线更为合理。

金辉优步湖畔-117平-现代风格-平面方案.jpg

案例设计师

林凤装饰设计师

设计师:林凤装饰设计师

从业时间:7年

设计理念:好的设计源于生活。

预约设计师

算算你家装修多少钱

报名即享丰厚赠品,品质装修

免费报价
咨询热线:400-656-9909
20190221103704574636.jpg

精品设计案例

20180612134930523248.jpg 服务号二维码.jpg