立即预约 立即预约
免费定制整装家居

免费定制整装家居

一站置家 全程无忧 一省到底
hide.png

当前位置: 首页 > 装修案例效果图 > 荣盛锦绣观邸

荣盛锦绣观邸 82平 现代简约风格效果图

收藏
案例风格 现代简约 案例户型 二居 案例面积 82平米
楼盘名称 荣盛锦绣观邸 设计师 林凤设计师 案例类型 改善性住宅

设计理念:本案是现代简约风格,主要是以简洁造型为主。所以本方案设计时整体的色调上选择的是黑灰白色系搭配一些高级色软装配饰,整体家居配饰以深色为主凸显风格的高级感。

客厅
第1张
第2张
第3张
第4张
第5张
餐厅
第1张
卧室
第1张
卫生间
第1张
厨房
第1张
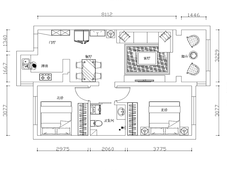
户型图
第1张
  • 案例详情

锦绣观邸-82平-现代风格- 首图.jpg 锦绣观邸-82平-现代风格- 客厅1.jpg 锦绣观邸-82平-现代风格- 客厅2.jpg 锦绣观邸-82平-现代风格- 客厅3.jpg 锦绣观邸-82平-现代风格- 客厅4.jpg

荣盛锦绣观邸82平两室两厅现代风格林凤装饰的客厅的空间色调整体以黑白色为主,吊顶造型以石膏板叠级石膏线做造型突出空间的层次感,电视背景墙没有加一些繁琐的造型,而是以灰色乳胶漆涂刷简约美观,沙发墙配上橘色的挂画活跃整个空间的氛围。

荣盛锦绣观邸-82平-现代风格- 餐厅.jpg

荣盛锦绣观邸82平两室两厅现代风格林凤装饰的餐厅的设计与厨房的吧台连在了一起,增加的家人平时交流的机会,餐桌上方艺术吊灯的选择增加整个空间的高级感,挂画的颜色选择与整体空间色调一致,增加空间色彩的连贯性。

锦绣观邸-82平-现代风格- 主卧.jpg

荣盛锦绣观邸82平两室两厅现代风格林凤装饰的主卧室床头背景墙刷了一面浅蓝色的乳胶漆,看起来很温馨,衣柜是整体定制衣柜。上面做的石膏板平棚使衣柜直接到顶,减少了后期清理灰尘的麻烦。

锦绣观邸-82平-现代风格- 卫生间.jpg

荣盛锦绣观邸82平两室两厅现代风格林凤装饰的卫生间

锦绣观邸-82平-现代风格- 厨房.jpg

荣盛锦绣观邸82平两室两厅现代风格林凤装饰的厨房的空间有限所以本案的厨房设计为开放式厨房,把冰箱的功能移除了厨房,做了一个拐角吧台,增加了厨房与餐厅的联动性,整体空间看起来也跟开阔。

锦绣观邸-82平-现代风格- 平面图.jpg

案例设计师

林凤设计师

设计师:林凤设计师

从业时间:6年

设计理念:一切随心,用心去感悟空间

预约设计师

算算你家装修多少钱

报名即享丰厚赠品,享半价装修

免费报价
咨询热线:400-656-9909
20190221103704574636.jpg

精品设计案例

20180612134930523248.jpg 服务号二维码.jpg