立即预约 立即预约
免费定制整装家居

免费定制整装家居

一站置家 全程无忧 一省到底
hide.png

当前位置: 首页 > 装修案例效果图 > 荣盛锦绣观邸

荣盛锦绣观邸 172平 轻奢风格效果图

收藏
案例风格 轻奢 案例户型 四居 案例面积 172平米
楼盘名称 荣盛锦绣观邸 设计师 吴勇 案例类型 改善性住宅

设计理念:本方案是以轻奢风格为主,主要是为了营造整体的氛围,为了更好的烘托出那种轻奢的感觉。在设计方面下了一些功夫,利用壁纸的质感与理石的效果去体现。

客厅
第1张
第2张
餐厅
第1张
卧室
第1张
卫生间
第1张
厨房
第1张
阳台
第1张
书房
第1张
儿童房
第1张
门厅
第1张
过廊
第1张
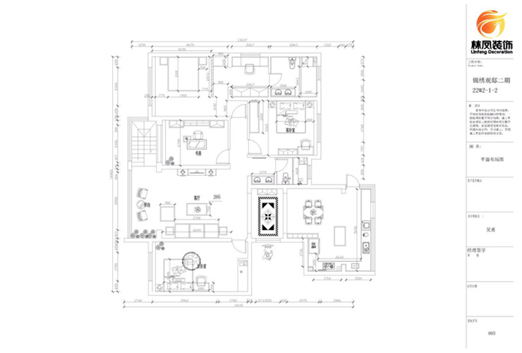
户型图
第1张
锦绣观邸-172平-轻奢-客厅.jpg 锦绣观邸-172平-轻奢-首图.jpg

荣盛锦绣观邸172平四室两厅轻奢风格林凤装饰的客厅部分主要是以会客为主,选择灰色地砖,搭配雅士白理石背景墙结合木质护墙板,客厅预留出中央空调,整体色调为灰色,沙发背景墙通过硬包及挂画来装饰。

锦绣观邸-172平-轻奢-餐厅.jpg

荣盛锦绣观邸172平四室两厅轻奢风格林凤装饰的餐厅位于门厅及厨房之间,起到一个过度的作用,独立的餐厅通过棚顶的划分以及酒柜和木线背景墙的装饰,给餐厅一个定位感,装饰性水晶吊灯将餐厅的大气体现得非常得体。

锦绣观邸-172平-轻奢-主卧室.jpg

荣盛锦绣观邸172平四室两厅轻奢风格林凤装饰的卧室是一个套房,内部带有衣帽间以及独立的卫生间,开放式衣帽间结合西面的窗户,显得整个卧室非常大气,既美观又实用,卧室床头背景通过壁纸来做装饰。

锦绣观邸-172平-轻奢-卫生间.jpg

荣盛锦绣观邸172平四室两厅轻奢风格林凤装饰的卫生间做的是干湿分离,在卫生间内部用玻璃浴屏将坐便以及淋浴隔开,同样在卫生间之外,设置洗手盆以及洗衣机,增加实用性以及空间的合理分化。

锦绣观邸-172平-轻奢-厨房.jpg

荣盛锦绣观邸172平四室两厅轻奢风格林凤装饰的开放式的厨房将充分的体现了整个户型的大气,L型的厨房将双开门冰箱放置在内,嵌入式的蒸烤箱都具备,西式岛餐台 将厨房又划分出一个空间,既增加了实用性也增添了美感。

锦绣观邸-172平-轻奢-阳台.jpg

荣盛锦绣观邸172平四室两厅轻奢风格林凤装饰的阳台

锦绣观邸-172平-轻奢-书房.jpg

荣盛锦绣观邸172平四室两厅轻奢风格林凤装饰的书房

锦绣观邸-172平-轻奢-儿童房.jpg

荣盛锦绣观邸172平四室两厅轻奢风格林凤装饰的儿童房

锦绣观邸-172平-轻奢-门厅.jpg

荣盛锦绣观邸172平四室两厅轻奢风格林凤装饰的玄关

锦绣观邸-172平-轻奢-过廊.jpg

荣盛锦绣观邸172平四室两厅轻奢风格林凤装饰的过廊

平面图.jpg

案例设计师

吴勇

设计师:吴勇

从业时间:11年

设计理念:用抽象的思维去设计形象的事物

预约设计师

算算你家装修多少钱

报名即享丰厚赠品,品质装修

免费报价
咨询热线:400-656-9909
20190221103704574636.jpg

精品设计案例

20180612134930523248.jpg 服务号二维码.jpg