立即预约 立即预约
免费定制整装家居

免费定制整装家居

一站置家 全程无忧 一省到底
hide.png

当前位置: 首页 > 装修案例效果图 > 旭辉东樾城

旭辉东樾城 80平 北欧风格效果图

收藏
案例风格 北欧 案例户型 二居 案例面积 80平米
楼盘名称 旭辉东樾城 设计师 丁强 案例类型 改善性住宅

设计理念:本案的设计理念是以简单大气为主,所以在设计上没有运用太多的造型,在颜色运用上也是采用浅色,家具是以实木为主,彰显北欧风格的情景与自然的结合。

客厅
第1张
第2张
第3张
餐厅
第1张
卧室
第1张
卫生间
第1张
厨房
第1张
门厅
第1张
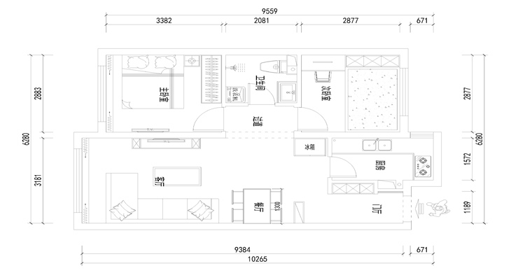
户型图
第1张
  • 案例详情

旭辉东樾城-80平-北欧风格-客厅.jpg 旭辉东樾城-80平-北欧风格-沙发.jpg 旭辉东樾城-80平-北欧风格-首图.jpg

客厅的地面采用800*800浅灰色大理石抛釉砖,沙发则采用深灰色,这样深浅搭配有对比性,电视背景墙没有做任何造型而是采用纯色壁布做的蓝色,顶面是用简单的叠级石膏线做的,简单明快,客厅沙发的抱枕和壁画是有联动性的,都是黄色,这样看起来非常自然。

旭辉东樾城-80平-北欧风格-餐厅.jpg

旭辉东樾城80平两室两厅北欧风格林凤装饰的餐厅空间比较小,餐厅的边上又是玄关,所以餐厅做的比较简单就是简单的放了一桌四椅,在颜色呼应上则是用到了餐桌上的桌布和墙饰做呼应,这样在餐厅的空间就不觉得空荡了。

旭辉东樾城-80平-北欧风格-主卧室.jpg

旭辉东樾城80平两室两厅北欧风格林凤装饰的卧室

旭辉东樾城-80平-北欧风格-卫生间.jpg

旭辉东樾城80平两室两厅北欧风格林凤装饰的卫生间用的是灰色大理石纹理瓷砖,由于卫生间的面积不是特别大。墙地瓷砖都是运用的灰色,灰色墙砖是当今比较流行的颜色也是白搭色,灰色更贴近生活与自然,浴室柜则运用浅色木纹,跟灰色瓷砖非常搭。

旭辉东樾城-80平-北欧风格-厨房.jpg

旭辉东樾城80平两室两厅北欧风格林凤装饰的厨房的搭配运用的是灰白色搭配,墙砖采用浅色瓷砖,爵士白瓷砖做衬底,橱柜则运用灰色,上柜和下柜都是灰色,这样看起来非常干净立正。

旭辉东樾城-80平-北欧风格-门厅.jpg

旭辉东樾城80平两室两厅北欧风格林凤装饰的玄关

旭辉东樾城-80平-北欧风格-平面图.jpg

案例设计师

丁强

设计师:丁强

从业时间:8年

设计理念:用心观察生活,感悟人生真谛,让设计与生活互动

预约设计师

算算你家装修多少钱

报名即享丰厚赠品,享半价装修

免费报价
咨询热线:400-656-9909
20190221103704574636.jpg

精品设计案例

20180612134930523248.jpg 服务号二维码.jpg