立即预约 立即预约
免费定制整装家居

免费定制整装家居

一站置家 全程无忧 一省到底
hide.png

当前位置: 首页 > 装修案例效果图 > 伯爵世家

伯爵世家 132平 轻奢风格效果图

收藏
案例风格 轻奢 案例户型 三居 案例面积 132平米
楼盘名称 伯爵世家 设计师 林凤设计师 案例类型 改善性住宅

设计理念:现代轻奢风格,得到了越来越多的业主朋友们的喜欢。尤其年轻的业主不喜欢平庸的家居风格,一定要在自己的爱家里凸显出与众不同。需要奢华而又不失时尚。

客厅
第1张
第2张
第3张
第4张
第5张
餐厅
第1张
卧室
第1张
第2张
卫生间
第1张
厨房
第1张
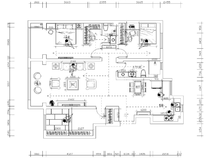
户型图
第1张
  • 案例详情

伯爵世家-132平-现代轻奢风格-客厅1.jpg 伯爵世家-132平-现代轻奢风格-客厅3_副本.jpg 伯爵世家-132平-现代轻奢风格-客厅2.jpg 伯爵世家-132平-现代轻奢风格-客厅4.jpg 伯爵世家-132平-现代轻奢风格-客厅5.jpg

伯爵世家132平三室两厅现代三室两厅林凤装饰的轻奢的客厅必须要有一个好的造型吊棚来突显出整体的空间。石材和镜面同时搭配的背景墙也是整体的空间的一大亮点,家具的搭配也是现代家具使得风格更加融合贴切。因为举架空间够高整体也安装了中央空调系统。这样一来使得整间房屋有着春天般的气息。

伯爵世家-132平-现代轻奢风格-餐厅.jpg

伯爵世家132平三室两厅现代轻奢风格三室两厅林凤装饰的餐厅空间的大小已经满足了餐桌就餐的使用。上方的造型吊棚与客厅统一协调亮丽。增加了一个酒柜设计让整家人来就餐也一同享受进餐时的快乐。

伯爵世家-132平-现代轻奢风格-次卧室.jpg 伯爵世家-132平-现代轻奢风格-主卧.jpg

伯爵世家132平三室两厅现代轻奢风格三室两厅林凤装饰的卧室做为睡眠休息的空间,在颜色没有过多的使用亮丽的色彩而是选择了中性色彩搭配柔软舒适皮质的大床。床头做了一个简单挂画来搭配。整体衣柜全部使用定制。更合合理化的达到了业主需求。

伯爵世家-132平-现代轻奢风格-卫生间.jpg

伯爵世家132平三室两厅现代轻奢风格三室两厅林凤装饰的卫生间仿理石纹理的墙砖分割上下整体通铺使得卫生间更加靓丽。为了能让卫生间更加干净整洁搭配了浴屏做到了干湿分离。

伯爵世家-132平-现代轻奢风格-厨房.jpg

伯爵世家132平三室两厅现代轻奢风格三室两厅林凤装饰的厨房做成开放式的厨房绝对是空间的一大亮点,浅白色仿大理石文理瓷砖搭配上香槟色烤漆橱柜是绝顶的搭配。更加富裕的厨房空间也让业主充分到每日烹饪带来的乐趣。

伯爵世家-132平-现代轻奢风格-平面.jpg

案例设计师

林凤设计师

设计师:林凤设计师

从业时间:10年

设计理念:

预约设计师

算算你家装修多少钱

报名即享丰厚赠品,享半价装修

免费报价
咨询热线:400-656-9909
20190221103704574636.jpg

精品设计案例

20180612134930523248.jpg 服务号二维码.jpg