立即预约 立即预约
免费定制整装家居

免费定制整装家居

一站置家 全程无忧 一省到底
hide.png

当前位置: 首页 > 装修案例效果图 > 其仕盛和祥

其仕盛和祥 86平 现代简约风格效果图

收藏
案例风格 现代简约 案例户型 二居 案例面积 86平米
楼盘名称 其仕盛和祥 设计师 林凤装饰 案例类型 婚房

设计理念:本案以暖色系为主、以简单的棚线、以及简约家居配饰的搭配,诠释了空间的。时尚,温馨,简洁而大气。

客厅
第1张
第2张
第3张
第4张
第5张
卧室
第1张
卫生间
第1张
厨房
第1张
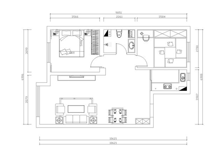
户型图
第1张
  • 案例详情

王充夷-其仕盛和祥-86平-现代简约-客厅01.jpg 王充夷-其仕盛和祥-86平-现代简约-客厅02.jpg 王充夷-其仕盛和祥-86平-现代简约-客厅03.jpg 王充夷-其仕盛和祥-86平-现代简约-客厅04.jpg 王充夷-其仕盛和祥-86平-现代简约-客厅05.jpg

客厅地面我们采用了暖色拋釉砖为主,配上了鹅蛋色的墙面搭配、加上了现代感极强的沙发设计,温馨而典雅。由于玄关对着沙发、配上了玄关屏风的隔断设计,使空间赋予了设计的层次感,因为客厅不太归方,又不太喜欢全棚的设计,所以采用阳台平棚的归方设计简洁而大气。

卧室.jpg

卧室选用灰系的地板搭配和地毯的层次对接,为空间营造了完美的气氛,加上床具的结合、和挂画的点缀、显得干净利落,给主人一个完全放松的状态。

王充夷-其仕盛和祥-86平-现代简约-卫生间.jpg

卫生间以灰白颜色为主,配上白色的浴室柜,简洁并附有实用性。手盆柜的灰白台面与墙砖也有呼应的效果。给平淡无奇墙体颜色增加层次感。

王充夷-其仕盛和祥-86平-现代简约-厨房.jpg

厨房柜体以白木为主,白色墙砖配黑色的地砖,大气并质感十足,彰显主人身份,符合整体风格。

王充夷-其仕盛和祥-86平-现代简约-户型图.jpg

案例设计师

林凤装饰

设计师:林凤装饰

从业时间:8年

设计理念:人为生活而设计,设计为生活而存在

预约设计师

算算你家装修多少钱

报名即享丰厚赠品,享半价装修

免费报价
咨询热线:400-656-9909
20190221103704574636.jpg

精品设计案例

20180612134930523248.jpg 服务号二维码.jpg