立即预约 立即预约
免费定制整装家居

免费定制整装家居

一站置家 全程无忧 一省到底
hide.png

当前位置: 首页 > 装修案例效果图 > 碧桂园繁华里

碧桂园繁华里 100平 现代简约风格效果图

收藏
案例风格 现代简约 案例户型 二居 案例面积 100平米
楼盘名称 碧桂园繁华里 设计师 孟凡玉 案例类型 改善性住宅

设计理念:通过平面规划和色彩搭配来打造浪漫舒适的居家空间。

客厅
第1张
第2张
餐厅
第1张
卧室
第1张
第2张
卫生间
第1张
厨房
第1张
第2张
阳台
第1张
衣帽间
第1张
第2张
门厅
第1张
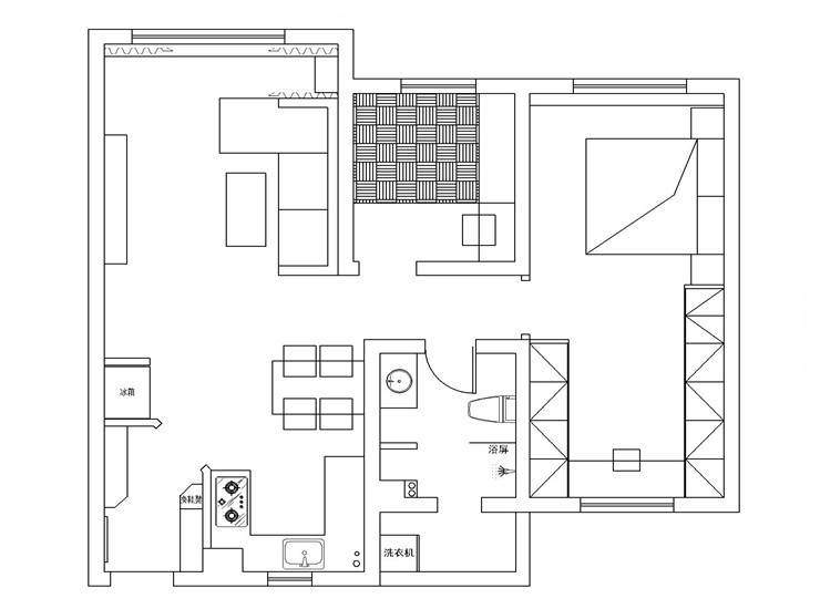
户型图
第1张
  • 案例详情

碧桂园繁华里-100平-客厅.jpg 首图.jpg

碧桂园繁华里100平两室两厅现代风格林凤装饰的客厅沙发背景采用湖蓝色的壁纸,将客厅空间独立出来,并用L型灰色系的沙发与电视背景墙壁纸通过色彩来呼应,看起来大气,柔和。

碧桂园繁华里-100平-餐厅.jpg

碧桂园繁华里100平两室两厅现代风格林凤装饰的餐厅用的是标准的四人桌,通过不同的餐椅样式,使空间看起来活泼,黄色的挂画与沙发搭毯相匹配,使空间的点缀色,简单的餐吊看起来很大气。

碧桂园繁华里-100平-榻榻米.jpg 碧桂园繁华里-100平-主卧.jpg

【主卧室说明】主卧室与次卧室打通了,做了个整体卧室结合衣帽间的形式,看起来更大气,适合两个人居住,储物空间比较够用。【次卧室说明】次卧室做了榻榻米,充当客卧来使用,使空间充分的利用上了,形成了一个睡觉,储物,办公一体化的空间。

碧桂园繁华里-100平-卫生间1.jpg

碧桂园繁华里100平两室两厅现代风格林凤装饰的卫生间以灰色调为主,看起来简洁干净,壁龛的设计增添了功能性,非常实用。

碧桂园繁华里-100平-厨房.jpg 碧桂园繁华里-100平-厨房1.jpg

碧桂园繁华里100平两室两厅现代风格林凤装饰的厨房采用了开放型,使空间大气,整体感比较强,双色橱柜颜色搭配,是厨房简洁干净。

碧桂园繁华里-100平-阳台.jpg

碧桂园繁华里100平两室两厅现代风格林凤装饰的阳台

碧桂园繁华里-100平-衣帽间1.jpg 碧桂园繁华里-100平-衣帽间2.jpg

碧桂园繁华里100平两室两厅现代风格林凤装饰的衣帽间

碧桂园繁华里-100平-门厅.jpg

碧桂园繁华里100平两室两厅现代风格林凤装饰的门厅区域通过墙体将空间独立出来,形成了独立门厅,功能性更加齐全,双排鞋柜非常实用,而且而且也解决了财气外流的问题。

户型图.jpg

案例设计师

孟凡玉

设计师:孟凡玉

从业时间:10年

设计理念:好的设计不只是美,它会让人产生美的 感受,它与生活息息相关

预约设计师

算算你家装修多少钱

报名即享丰厚赠品,享半价装修

免费报价
咨询热线:400-656-9909
20190221103704574636.jpg

精品设计案例

20180612134930523248.jpg 服务号二维码.jpg