立即预约 立即预约
免费定制整装家居

免费定制整装家居

一站置家 全程无忧 一省到底
hide.png

当前位置: 首页 > 装修案例效果图 > 美好奉玺台

美好奉玺台 460平 轻奢风格效果图

收藏
案例风格 轻奢 案例户型 别墅 案例面积 460平米
楼盘名称 美好奉玺台 设计师 白涵琦 案例类型 改善性住宅

设计理念:运用简单的材质,搭配奢华的效果,只选对的,不选贵的

客厅
第1张
第2张
第3张
餐厅
第1张
第2张
卧室
第1张
第2张
卫生间
第1张
厨房
第1张
第2张
休闲区
第1张
第2张
衣帽间
第1张
第2张
门厅
第1张
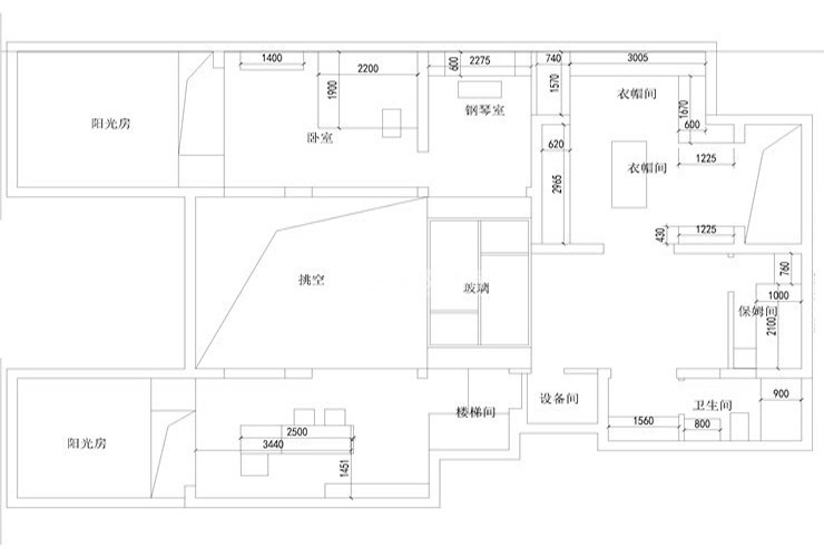
户型图
第1张
第2张
  • 案例详情

美好奉玺台-460平-现代轻奢-一楼客厅.jpg 美好奉玺台-460平-现代轻奢-负二层挑空.jpg 美好奉玺台-460平-现代轻奢-负一层会客厅.jpg

美好奉玺台460平别墅现代轻奢风格林凤装饰的客厅设计挑空,地下室空间比较大,挑空设计让负二的采光,通风更好一些,五米高的电视背景墙也符合整体面积该有的设计效果,也让负一层和负二层更具有互动性,一部分楼板设计玻璃顶,透光不透影,让挑空面积看起来更大。

美好奉玺台-460平-现代轻奢-负二层餐区.jpg 美好奉玺台-460平-现代轻奢-一楼餐厅.jpg

美好奉玺台460平别墅现代轻奢风格林凤装饰的餐厅没有选择成品餐桌,平时聚餐多,地下室设计多功能的大桌子,日常聚会用,楼上三口之家,设计和中岛定制一体的吧台设计,代替餐桌功能,让细长的餐厅空间看起来丰富,饱满。

美好奉玺台-460平-现代轻奢-负一层客房.jpg 美好奉玺台-460平-现代轻奢-一楼主卧室.jpg

主卧室说明:主卧室床头设计硬包装饰,日常好打理,也符合整体风格,通透感很强的衣帽间设计,空间划分也独立,有具有穿透性,使空间看起来更大,更通透,现代感强。

美好奉玺台-460平-现代轻奢-一楼主卫.jpg

美好奉玺台460平别墅现代轻奢风格林凤装饰的卫生间选用防潮石膏板,棚顶压钨钢钢条,和其他空间搭配,纹理夸张的砖让空间更有延伸性,是空间视觉感觉更大,也符合年轻人的个性。

美好奉玺台-460平-现代轻奢-负二层酒吧.jpg 美好奉玺台-460平-现代轻奢-负二层酒吧区.jpg

美好奉玺台460平别墅现代轻奢风格林凤装饰的厨房酒吧区,顶棚做亚克力镜面设计,和挑空做个呼应,有个高低的层次感,整体色系为黑白灰色调,定制理石吧台,更具有现代化。

美好奉玺台-460平-现代轻奢-负二层茶区.jpg 美好奉玺台-460平-现代轻奢-负二层儿童活动室.jpg

美好奉玺台460平别墅现代轻奢风格林凤装饰的儿童活动室和茶室

美好奉玺台-460平-现代轻奢-负二层衣帽间.jpg 美好奉玺台-460平-现代轻奢-负一层衣帽间.jpg

美好奉玺台460平别墅现代轻奢风格林凤装饰的衣帽间

美好奉玺台-460平-现代轻奢-一楼玄关.jpg

美好奉玺台460平别墅现代轻奢风格林凤装饰的玄关

美好奉玺台-460平-现代轻奢-负二层平面图.jpg 美好奉玺台-460平-现代轻奢-负一层平面图.jpg

案例设计师

白涵琦

设计师:白涵琦

从业时间:10年

设计理念:设计实现客户家居梦想

预约设计师

算算你家装修多少钱

报名即享丰厚赠品,品质装修

免费报价
咨询热线:400-656-9909
20190221103704574636.jpg

精品设计案例

20180612134930523248.jpg 服务号二维码.jpg