立即预约 立即预约
免费定制整装家居

免费定制整装家居

一站置家 全程无忧 一省到底
hide.png

当前位置: 首页 > 装修案例效果图 > 金地樾檀山

金地樾檀山 138平 轻奢风格效果图

收藏
案例风格 轻奢 案例户型 三居 案例面积 138平米
楼盘名称 金地樾檀山 设计师 林凤设计师 案例类型 改善性住宅

设计理念:本案是一套洋房,将北边的厨房和书房打开,将通透感做到极致。大面积的留白以有质感的灰色为过度,采用黑色线条点缀,使开敞的大平层序列感层次感十足。

客厅
第1张
第2张
第3张
第4张
餐厅
第1张
第2张
卧室
第1张
卫生间
第1张
厨房
第1张
书房
第1张
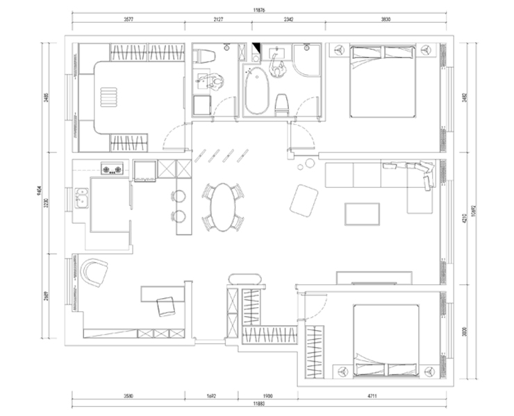
户型图
第1张
金地樾檀山-138-现代轻奢餐厅-客厅1.jpg 金地樾檀山-138-现代轻奢餐厅-客厅2.jpg 金地樾檀山-138-现代轻奢餐厅-客厅3.jpg 金地樾檀山-138-现代轻奢餐厅-首图.jpg

金地樾檀山138平三室两厅现代轻奢风格林凤装饰的客厅的区域,电视背景墙用立体构成的手法,将黑白灰色块张扬的表达,光滑的白色理石,灰色肌理艺术涂料,黑色实木纹理,三个鲜明质感搭叠在一起,营造出简约又有质感的立面。沙发背景墙采用现代手法打造回字格造型,增强序列感,又有古典法式的浪漫。

金地樾檀山-138-现代轻奢餐厅-餐厅1.jpg 金地樾檀山-138-现代轻奢餐厅-餐厅2.jpg

金地樾檀山138平三室两厅现代轻奢风格林凤装饰的餐厅没有特定的空间划分,玻璃隔断作为模糊的界限,精致的黑色线框与棚面相呼应。圆形的餐桌打造浪漫闲适的用餐体验。吧台的设置增加了空间的趣味性,又符合快节奏的生活方式。吧台与电器柜结合,勾勒出一个简单的西厨空间,空间划分看似无形,实则井井有条。

金地樾檀山-138-现代轻奢餐厅-主卧.jpg

金地樾檀山138平三室两厅现代轻奢风格林凤装饰的卧室沿用客厅的装饰手法,明亮的色调,极简的线条,肌理质感的墙面,体现屋主人淡然富有品味的生活观念。

金地樾檀山-138-现代轻奢餐厅-主卫.jpg

金地樾檀山138平三室两厅现代轻奢风格林凤装饰的卫生间采用石材纹理的瓷砖,打造硬朗简洁的空间。小浴缸的设计给女主人的精致生活增加了另一种可能。

金地樾檀山-138-现代轻奢餐厅-厨房.jpg

金地樾檀山138平三室两厅现代轻奢风格林凤装饰的厨房的拉门极致扩张,不留一点墙体,将通透进行到底。白色柜体与进口石材纹理台面板,营造简洁干净的空间。

金地樾檀山-138-现代轻奢餐厅-书房.jpg

金地樾檀山138平三室两厅现代轻奢风格林凤装饰的书房

金地樾檀山-138-现代轻奢餐厅-平面图.jpg

案例设计师

林凤设计师

设计师:林凤设计师

从业时间:8年

设计理念:一切随心,用心去感悟空间

预约设计师

算算你家装修多少钱

报名即享丰厚赠品,品质装修

免费报价
咨询热线:400-656-9909
20190221103704574636.jpg

精品设计案例

20180612134930523248.jpg 服务号二维码.jpg