立即预约 立即预约
免费定制整装家居

免费定制整装家居

一站置家 全程无忧 一省到底
hide.png

当前位置: 首页 > 装修案例效果图 > 融创中央学府

融创中央学府 132平 轻奢风格效果图

收藏
案例风格 轻奢 案例户型 三居 案例面积 132平米
楼盘名称 融创中央学府 设计师 林凤设计师 案例类型 改善性住宅

设计理念:三室两厅一厨两卫,高层,整体风格采用了现代轻奢,以简约的风格和和精致的软装搭配给空间营造一种不一样的质感,其中包含了功能性和细节性,运用色彩打造出轻奢的感觉。

客厅
第1张
第2张
第3张
餐厅
第1张
卧室
第1张
第2张
第3张
卫生间
第1张
第2张
厨房
第1张
门厅
第1张
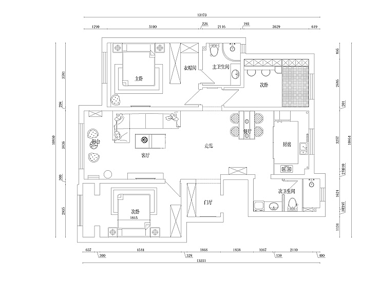
户型图
第1张
  • 案例详情

融创中央学府-132平-轻奢风格-电视背景墙.jpg 融创中央学府-132平-轻奢风格-沙发背景墙.jpg 融创中央学府-132平-轻奢风格-首图.jpg

融创中央学府132平三室两厅现代轻奢风格林凤装饰的客厅在色彩的选择上,以灰白色为基调,灰色的沙发,背景墙采用了深木色护墙板,简单而不乏质感,客厅的水晶灯在无意之间凸显了空间的精致感,低调而奢华。

融创中央学府-132平-轻奢风格-餐厅.jpg

餐厅沿用了客厅黑白灰的色彩基调,餐桌和餐椅简约而不简单,为这个空间添了一些柔和的意味。融创中央学府132平三室两厅现代轻奢风格林凤装饰的

融创中央学府-132平-轻奢风格-次卧.jpg 融创中央学府-132平-轻奢风格-榻榻米.jpg 融创中央学府-132平-轻奢风格-主卧.jpg

融创中央学府132平三室两厅现代轻奢风格林凤装饰的卧室是休息的主要空间,主卧在低调的灰色主调中,更加有助于人们休息,衣柜,床头柜的选择上采用了通体玻璃门的设计,带来浪漫和高雅的情调,而客卧则采用了榻榻米形式,保证在有多个客人时也能有足够的空间,也增加了储物空间,实现了功能性和美观性为一体。

融创中央学府-132平-轻奢风格-卫生间.jpg 融创中央学府-132平-轻奢风格-卫生间干区.jpg

卫生间墙砖采用了波斯灰大理石纹,洗手台做了内嵌洗衣机设计,美观的同时增加了功能性,增加了镜箱柜,增加的必备的收纳空间。融创中央学府132平三室两厅现代轻奢风格林凤装饰的

融创中央学府-132平-轻奢风格-厨房.jpg

融创中央学府132平三室两厅现代轻奢风格林凤装饰的厨房是生活气息最浓厚的地方,采用了封闭式厨房的形式,使用极简款窄边拉门更加通透。同样使用了白色大理石纹的墙砖,与客厅灰色进行呼应,橱柜选择了和餐桌餐椅一样的颜色和样式进行搭配。

融创中央学府-132平-轻奢风格-门厅柜.jpg

融创中央学府132平三室两厅现代轻奢风格林凤装饰的玄关

融创中央学府-132平-轻奢风格-平面图.jpg

案例设计师

林凤设计师

设计师:林凤设计师

从业时间:5年

设计理念:设计源于生活,生活因设计而改变,用有限的空间。做无限的设计,成就梦想之家。

预约设计师

算算你家装修多少钱

报名即享丰厚赠品,品质装修

免费报价
咨询热线:400-656-9909
20190221103704574636.jpg

精品设计案例

20180612134930523248.jpg 服务号二维码.jpg