立即预约 立即预约
免费定制整装家居

免费定制整装家居

一站置家 全程无忧 一省到底
hide.png

当前位置: 首页 > 装修案例效果图 > 格林玫瑰湾

格林玫瑰湾 145平 北欧风格效果图

收藏
案例风格 北欧 案例户型 三居 案例面积 145平米
楼盘名称 格林玫瑰湾 设计师 林凤设计师 案例类型 改善性住宅

设计理念:本案例为三口之家,希望空间不拘泥于造型性,弱化与简化造型的复杂性,使空间达到舒适性,并处理了空间关系及各种材质的和谐与冲突,最终形成回归本真的生活。

客厅
第1张
第2张
第3张
餐厅
第1张
第2张
第3张
第4张
第5张
第6张
卧室
第1张
第2张
第3张
卫生间
第1张
第2张
厨房
第1张
第2张
阳台
第1张
儿童房
第1张
休闲区
第1张
门厅
第1张
过廊
第1张
第2张
第3张
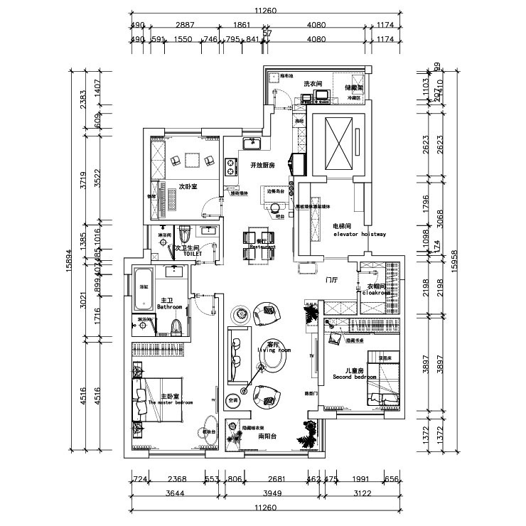
户型图
第1张
  • 案例详情

S2-范赢-格林玫瑰湾-145-北欧-客厅1.jpg S2-范赢-格林玫瑰湾-145-北欧-客厅2.jpg S2-范赢-格林玫瑰湾-145-北欧-首图.jpg

格林玫瑰湾145平三室两厅北欧风格林凤装饰的客厅以灰色调作为打底,褪去浮华的装饰,以雅灰为主,小面积的木色带起空间的节奏感。各种鲜明的线条、形状、和肌理,充斥在空间的细节处。

S2-范赢-格林玫瑰湾-145-北欧-餐厅2.jpg S2-范赢-格林玫瑰湾-145-北欧-餐厅3.jpg S2-范赢-格林玫瑰湾-145-北欧-餐厅1.jpg S2-范赢-格林玫瑰湾-145-北欧-吧台区3.jpg S2-范赢-格林玫瑰湾-145-北欧-吧台区1.jpg S2-范赢-格林玫瑰湾-145-北欧-吧台区2.jpg

格林玫瑰湾145平三室两厅北欧风格林凤装饰的餐厅延续客厅的整体格调,木质的餐桌增加质感,格纹图案的布艺餐椅,使整个空间更加放松,简单的金属吊灯轻松打造了北欧风,区别于过多的色彩搭配而产生的审美疲劳。

S2-范赢-格林玫瑰湾-145-北欧-客卫生间.jpg S2-范赢-格林玫瑰湾-145-北欧-次卧室.jpg S2-范赢-格林玫瑰湾-145-北欧-主卧室.jpg

【主卧室说明】主卧室是主人最惬意闲适的地方,以稳重雅致的灰色作为房间的主色调,没有繁杂的雕饰,简单布艺和木色的融合,彰显着居住者优雅的生活状态与情调。

S2-范赢-格林玫瑰湾-145-北欧-客卫生间.jpg S2-范赢-格林玫瑰湾-145-北欧-主卫生间.jpg

格林玫瑰湾145平三室两厅北欧风格林凤装饰的主卫的墙面和地面采用纹理明显的瓷砖,成熟稳重的同时又不失品位,自带高级格调。让业主对生活的幸福感油然而生。

S2-范赢-格林玫瑰湾-145-北欧-厨房2.jpg S2-范赢-格林玫瑰湾-145-北欧-厨房1.jpg

格林玫瑰湾145平三室两厅北欧风格林凤装饰的厨房墙面采用白色小块瓷砖,增加空间感的同时会显得更加干净立正。流畅的操作台,多功能岛台以及内嵌家电和大量的储物空间让这个最有烟火气息的空间为生活带来了几分乐趣。

S2-范赢-格林玫瑰湾-145-北欧-阳台.jpg

格林玫瑰湾145平三室两厅北欧风格林凤装饰的阳台

S2-范赢-格林玫瑰湾-145-北欧-儿童房.jpg

格林玫瑰湾145平三室两厅北欧风格林凤装饰的儿童房

S2-范赢-格林玫瑰湾-145-北欧-洗衣间.jpg

格林玫瑰湾145平三室两厅北欧风格林凤装饰的洗衣间

S2-范赢-格林玫瑰湾-145-北欧-门厅.jpg

格林玫瑰湾145平三室两厅北欧风格林凤装饰的玄关

S2-范赢-格林玫瑰湾-145-北欧-过厅1.jpg S2-范赢-格林玫瑰湾-145-北欧-过厅3.jpg S2-范赢-格林玫瑰湾-145-北欧-过厅2.jpg

格林玫瑰湾145平三室两厅北欧风格林凤装饰的过廊

S2-范赢-格林玫瑰湾-145-北欧-平面图.jpg

案例设计师

林凤设计师

设计师:林凤设计师

从业时间:5年

设计理念:设计不仅仅能带给我们视觉上的享受,还能让我们的生活变得舒适、方便。

预约设计师

算算你家装修多少钱

报名即享丰厚赠品,享半价装修

免费报价
咨询热线:400-656-9909
20190221103704574636.jpg

精品设计案例

20180612134930523248.jpg 服务号二维码.jpg