立即预约 立即预约
免费定制整装家居

免费定制整装家居

一站置家 全程无忧 一省到底
hide.png

当前位置: 首页 > 装修案例效果图 > 尚景新世界

尚景新世界 240平 现代简约风格效果图

收藏
案例风格 现代简约 案例户型 五居 案例面积 240平米
楼盘名称 尚景新世界 设计师 仲崇彤 案例类型 改善性住宅

设计理念:在空间作品构思过程中所确立的主导思想,它赋予作品文化内涵和风格特点。好的设计理念至关重要,它不仅是设计的精髓所在,而且能令作品具有个性化、专业化和与众不同的效果。

客厅
第1张
第2张
餐厅
第1张
卧室
第1张
第2张
卫生间
第1张
厨房
第1张
书房
第1张
儿童房
第1张
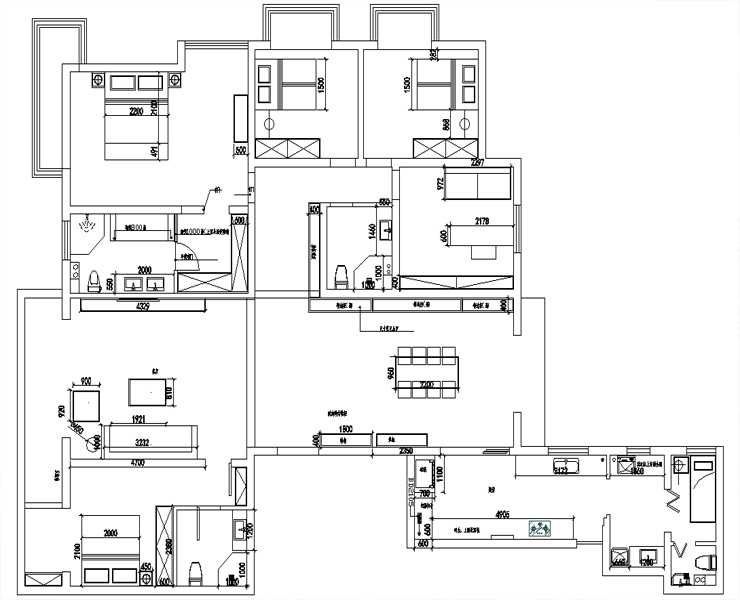
户型图
第1张
  • 案例详情

新世界-240平-现代风格-客厅.jpg 新世界-240平-现代风格-首图.jpg

尚景新世界240平5居室现代风风格林凤装饰的客厅主要的想法以1200*600作为基础的大厅地砖,纹理考虑是一起。 大版得设计必然是以后流行的趋势,电视背景墙整体石材和墙板得充分结合,体现出现代港式得低调奢华,背景墙中得绿植作为端景,也是整体风格得点睛之笔。

新世界-240平-现代风格-餐厅.jpg

尚景新世界240平5居室现代风风格林凤装饰的 餐厅与客厅相连,设计风格亦如出一辙,以人为本 餐厅作为现代生活中,人们社交的重要场所,其设计属性甚至超越了餐饮属性。因此,餐厅的设计需要根据“以人为本”的设计理念。消费者不再局限于“好吃”的基本需求,更多的是在餐厅能获得消费体验感和舒适的社交。

新世界-240平-现代风格-主卧室.jpg 新世界-240平-现代风格-客卧室.jpg

【主卧室说明】主卧设计整体给人的感觉是舒适雅致、时尚简约,轻柔的乳白色奠定了整个空间和谐宁静的基调,让人心灵平和。通透的落地窗让户外的精致一览无余,经现代手法重新演绎的欧式墙面装饰,带有一丝英伦风情,又使整个空间显得丰富并具有层次变化。花朵挂画、沙发、以及床上的抱枕,都选用了低饱和度的蓝色,看上去自然舒适。欧式布艺灯优雅别致,散发出温暖柔和的光,轻柔地洒在挂画、相架以及花瓶里盛开的百合上,不禁让人想起这样一副美妙的画面:主人经过一夜好眠,黎明渐渐苏醒,清凉的空气拂动窗帘,百合花散发着幽香,时光缓缓移步。

新世界-240平-现代风格-卫生间.jpg

尚景新世界240平5居室现代风风格林凤装饰的卫生间

新世界-240平-现代风格-厨房.jpg

尚景新世界240平5居室现代风风格林凤装饰的厨房

新世界-240平-现代风格-书房.jpg

尚景新世界240平5居室现代风风格林凤装饰的书房

新世界-240平-现代风格-儿童房.jpg

尚景新世界240平5居室现代风风格林凤装饰的儿童房

新世界-240平-现代风格-户型图.jpg

案例设计师

仲崇彤

设计师:仲崇彤

从业时间:15年

设计理念:设计就是着重于点、线、面的灵活运用,把整个环境营造出家的温馨。

预约设计师

算算你家装修多少钱

报名即享丰厚赠品,享半价装修

免费报价
咨询热线:400-656-9909
20190221103704574636.jpg

精品设计案例

20180612134930523248.jpg 服务号二维码.jpg