立即预约 立即预约
免费定制整装家居

免费定制整装家居

一站置家 全程无忧 一省到底
hide.png

当前位置: 首页 > 装修案例效果图 > 保利茉莉公馆

保利茉莉公馆 125平 北欧风格效果图

收藏
案例风格 北欧 案例户型 三居 案例面积 125平米
楼盘名称 保利茉莉公馆 设计师 张景新 案例类型 改善性住宅

设计理念:为生活设计,创造设计主义。

客厅
第1张
餐厅
第1张
第2张
卧室
第1张
第2张
卫生间
第1张
厨房
第1张
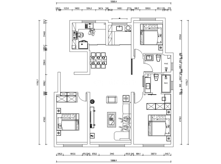
户型图
第1张
  • 案例详情

中海城和悦府-125平-北欧风格-客厅首图.jpg

保利茉莉公馆125平三室两厅北欧风格林凤装饰的客厅电视背景墙使用理石上墙的处理手法,使整个空间通透大气,理石的整体性比之地砖上墙更加的时尚自然,再搭配定制的护墙板使整个背景墙多了几分现代的贵气。

中海城和悦府-125平-北欧风格-餐厅.jpg 中海城和悦府-125平-北欧风格-餐厅1.jpg

保利茉莉公馆125平三室两厅北欧风格林凤装饰的餐厅是由简单的六人位餐桌搭配定制的护墙板框背景墙,简单中又有一丝奢侈,轻奢气息一览无余,而边框中间的装饰画使整个空间瞬间多了一动感。

中海城和悦府-125平-北欧风格-主卧室.jpg 中海城和悦府-125平-北欧风格-主卧室1.jpg

保利茉莉公馆125平三室两厅北欧风格林凤装饰的主卧室硬包床头背景墙配以现代感十足的挂画,不仅颜色更加丰富,而且使得整个卧室又多了一份活力与俏皮。

中海城和悦府-125平-北欧风格-卫生间.jpg

保利茉莉公馆125平三室两厅北欧风格林凤装饰的卫生间

中海城和悦府-125平-北欧风格-厨房.jpg

保利茉莉公馆125平三室两厅北欧风格林凤装饰的厨房的门板与客厅背景墙材质统一,均由护墙板制成,明亮中又有奢华,干净整洁又好打理。

户型图.jpg

案例设计师

张景新

设计师:张景新

从业时间:6年

设计理念:合理的划分空间,让设计融入生活,营造自然,品味,格调

预约设计师

算算你家装修多少钱

报名即享丰厚赠品,品质装修

免费报价
咨询热线:400-656-9909
20190221103704574636.jpg

精品设计案例

20180612134930523248.jpg 服务号二维码.jpg