立即预约 立即预约
免费定制整装家居

免费定制整装家居

一站置家 全程无忧 一省到底
hide.png

当前位置: 首页 > 装修案例效果图 > 凯兴花园

凯兴花园 130平 北欧风格效果图

收藏
案例风格 北欧 案例户型 三居 案例面积 130平米
楼盘名称 凯兴花园 设计师 林凤设计师 案例类型 改善性住宅

设计理念:随着人们个性化的需求逐渐增多,装修风格也多种多样,使用不同的风格装修房屋能够为居住者带来不一样的家居生活体验。其中北欧风格装修的房屋内,我们常常可以看到木质材料产品的身影,它是北欧风格装修的灵魂。设计师常常会选择在室内使用各种不同款式和材质的木质装饰物,以凸显出更加自然和简约的北欧风格特点,从而增强居室整体的装修效果,为消费者打造更加自然、舒适的家居生活环境。

客厅
第1张
第2张
第3张
第4张
餐厅
第1张
卧室
第1张
卫生间
第1张
厨房
第1张
门厅
第1张
过廊
第1张
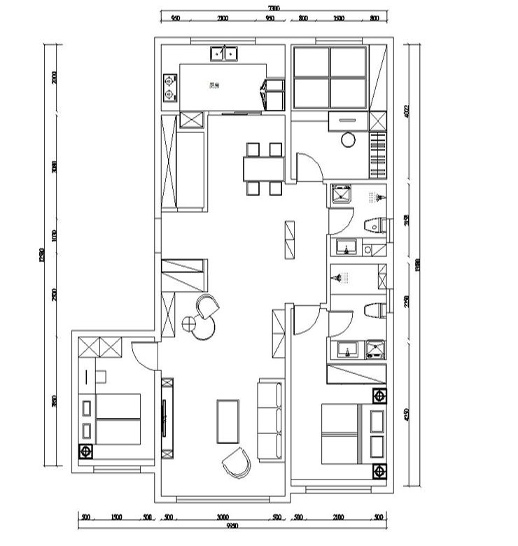
户型图
第1张
  • 案例详情

凯兴花园-130㎡-北欧风格-客厅2.jpg 凯兴花园-130㎡-北欧风格-客厅3.jpg 凯兴花园-130㎡-北欧风格-客厅.jpg 凯兴花园-130㎡-北欧风格-客厅1.jpg

凯兴花园160平三室两厅北欧风格林凤装饰的客厅以白色的墙砖作为整体空间的设计亮点,搭配上蓝色的电视墙壁纸,以及暖灰色陪衬,凸显客厅的颜色区分。

凯兴花园-130㎡-北欧风格-餐厅.jpg

凯兴花园160平三室两厅北欧风格林凤装饰的餐厅以北欧风格著称的原色色系餐椅,墙面深灰浅灰的壁纸搭配,凸显餐厅独立空间的设计感,颜色对比强烈,复合业主要求。

凯兴花园-130㎡-北欧风格-卧室.jpg

凯兴花园160平三室两厅北欧风格林凤装饰的卧室以原木色为主的衣柜,本着卧室作为主人休息的空间,仅用单纯的,纯色壁纸,作为床头背景,简约而不失空间设计

凯兴花园-130㎡-北欧风格-卫生间.jpg

凯兴花园160平三室两厅北欧风格林凤装饰的卫生间以灰色墙砖,以及浴缸为主,成品的手盆,搭配智能的坐便,低调上档次。

凯兴花园-130㎡-北欧风格-厨房.jpg

凯兴花园160平三室两厅北欧风格林凤装饰的为U型厨房,原木与奶白的橱柜结合,体现厨房整体层次感,墙壁整改后的高柜处,使厨房整体功能性,更加的全面。

凯兴花园-130㎡-北欧风格-门厅.jpg

凯兴花园160平三室两厅北欧风格林凤装饰的玄关

凯兴花园-130㎡-北欧风格-过廊.jpg

凯兴花园160平三室两厅北欧风格林凤装饰的过廊

凯兴花园-130㎡-北欧风格-平面图.jpg

案例设计师

林凤设计师

设计师:林凤设计师

从业时间:7年

设计理念:人为生活而设计,设计为生活而存在。

预约设计师

算算你家装修多少钱

报名即享丰厚赠品,品质装修

免费报价
咨询热线:400-656-9909
20190221103704574636.jpg

精品设计案例

20180612134930523248.jpg 服务号二维码.jpg