立即预约 立即预约
免费定制整装家居

免费定制整装家居

一站置家 全程无忧 一省到底
hide.png

当前位置: 首页 > 装修案例效果图 > 万锦香樟树

万锦香樟树 110平 现代简约风格效果图

收藏
案例风格 现代简约 案例户型 三居 案例面积 110平米
楼盘名称 万锦香樟树 设计师 林凤设计师 案例类型 改善性住宅

设计理念:现代简约风格,结合硬装奢华的界面,软装通过水晶皮毛、皮革、亮面质感的家饰强化奢华、优雅的主题,由米色、咖色为主,搭配经典的黑白灰,注入暗红色,点缀金色、奢华而不失时尚。

客厅
第1张
第2张
第3张
餐厅
第1张
第2张
卧室
第1张
卫生间
第1张
厨房
第1张
休闲区
第1张
第2张
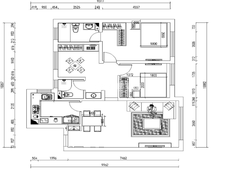
户型图
第1张
  • 案例详情

万锦香樟树-110平-现代极简风格-客厅1.jpg 万锦香樟树-110平-现代极简风格-客厅3.jpg 万锦香樟树-110平-现代极简风格-客厅2.jpg

万锦香樟树110平三室两厅现代极简风格林凤装饰的客厅整体以深色实木地板为整体地面铺设,电视背景墙采用硅藻泥做砖墙拼接铺设,而且有凹凸不平的拼接突显出层次不同的美感。整体客厅都以深色乳胶漆来做墙面使得空间感层次分明。

万锦香樟树-110平-现代极简风格-餐厅1.jpg 万锦香樟树-110平-现代极简风格-餐厅2.jpg

万锦香樟树110平三室两厅现代极简风格林凤装饰餐厅的位置兼顾了客厅和厨房的完美衔接。餐厅的空间使用了简洁的长桌。餐椅的搭配兼顾了客厅的沙发颜色做了搭配。所有的动线空间也都做了更好的衔接。

万锦香樟树-110平-现代极简风格-卧室.jpg

万锦香樟树110平三室两厅现代极简风格林凤装饰主卧做为睡眠休息的空间,在颜色没有过多的使用亮丽的色彩而是选择了白色与灰色搭配。柔软舒适的大床是最佳的选择。地板的设计靠整体的家具进行了搭配。温馨舒适的卧室才是首选之一。

万锦香樟树-110平-现代极简风格-卫生间.jpg

万锦香樟树110平三室两厅现代极简风格林凤装饰卫生间墙面以爵士白仿理石瓷砖为主色调,搭配上理石质感的地面整体相呼应。人工砌筑的手盆更为亮点,同时也在卫生间设计浴盆空间使业主在闲暇之余也可以享受泡澡的愉悦。

万锦香樟树-110平-现代极简风格-厨房.jpg

万锦香樟树110平三室两厅现代极简风格林凤装饰厨房,封闭式毫无疑问这个空间必须以分隔开日常油烟。白色仿理石瓷砖凸显出白色烤漆橱柜的亮丽简约。。这样以来房主也找了自己放松休闲的空间。

万锦香樟树-110平-现代极简风格-茶室2.jpg 万锦香樟树-110平-现代极简风格-茶室1.jpg

万锦香樟树110平三室两厅现代极简风格林凤装饰茶室整体空间划分出了一个单独休闲茶室。这里是工作之余休闲放松的最大乐趣所在。简约突出的水泥哑光台阶把区域单独做了划分。此空间也正式整体设计惊鸿一瞥所在。

万锦香樟树-110平-现代极简风格-平面.jpg

案例设计师

林凤设计师

设计师:林凤设计师

从业时间:10年

设计理念:

预约设计师

算算你家装修多少钱

报名即享丰厚赠品,享半价装修

免费报价
咨询热线:400-656-9909
20190221103704574636.jpg

精品设计案例

20180612134930523248.jpg 服务号二维码.jpg