立即预约 立即预约
免费定制整装家居

免费定制整装家居

一站置家 全程无忧 一省到底
hide.png

当前位置: 首页 > 装修案例效果图 > 乐天圣苑

乐天圣苑 255平 现代简约风格效果图

收藏
案例风格 现代简约 案例户型 三居 案例面积 255平米
楼盘名称 乐天圣苑 设计师 李承成 案例类型 改善性住宅

设计理念:本案为现代简约风格,给人舒适、自然回归本源的设计理念。从选材、色彩、软装配饰上入手,从繁到简,从简到精致,给人带来舒适度的同时又不失实用与时尚。

客厅
第1张
餐厅
第1张
第2张
卧室
第1张
第2张
卫生间
第1张
儿童房
第1张
衣帽间
第1张
门厅
第1张
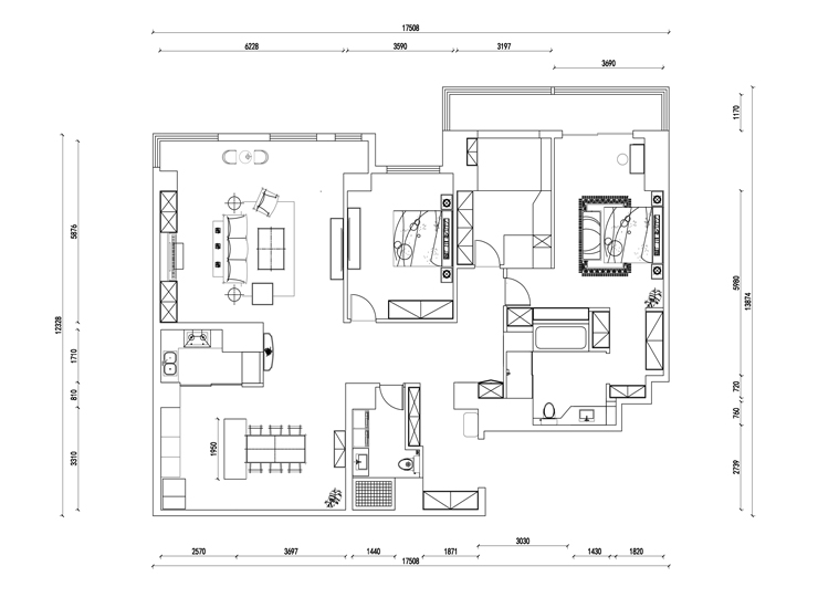
户型图
第1张
  • 案例详情

乐天圣苑-255平-现代简约-客厅.jpg

乐天圣苑255平三室两厅现代风格林凤装饰的客厅是一家人休闲交流的主要场所,硬装部分尽量弱化,灰色的地面让人放松身心的同时又时尚自然,再利用软装色彩的调和使整个空间多了几分现代的贵气。

乐天圣苑-255平-现代简约-首图.jpg 乐天圣苑-255平-现代简约-餐厅1.jpg

乐天圣苑255平三室两厅现代风格林凤装饰的西厨与餐厅相连,使整个空间瞬间增大,又多了一丝明亮,岛台的设计完美的划分空间,合理的功能分区有效的利用每一个空间,爵士白理石搭配套色柜体简约而时尚。

乐天圣苑-255平-现代简约-主卧.jpg 乐天圣苑-255平-现代简约-客卧.jpg

【主卧室说明】主卧室的设计亮点在于空间的高度及进深,高级灰的软装配饰、中性色的软包床头背景墙简约的同时提升贵气,使整个空间大气彰显。【次卧室说明】次卧室床头背景墙配以贵气十足的色彩,不仅现代感十足,而且使得整个卧室看起来舒适温馨。

乐天圣苑-255平-现代简约-卫生间.jpg

乐天圣苑255平三室两厅现代风格林凤装饰的卫生间不算宽敞,但是配以爵士白的墙地砖造型铺装,使整个空间不至于太过拥挤,马桶后方的挂画让整个卫生间更加的大气。

乐天圣苑-255平-现代简约-儿童房.jpg

乐天圣苑255平三室两厅现代风格林凤装饰的儿童房以简单的几何线条勾勒出时尚的书桌及书架,墙面色彩和布艺配饰完美结合,使空间看起来舒适高雅。

乐天圣苑-255平-现代简约-衣帽间.jpg

乐天圣苑255平三室两厅现代风格林凤装饰的衣帽间

乐天圣苑-255平-现代简约-玄关.jpg

乐天圣苑255平三室两厅现代风格林凤装饰的玄关

乐天圣苑-255平-现代简约-平面图.jpg

案例设计师

李承成

设计师:李承成

从业时间:15年

设计理念:细节决定品质。

预约设计师

算算你家装修多少钱

报名即享丰厚赠品,品质装修

免费报价
咨询热线:400-656-9909
20190221103704574636.jpg

精品设计案例

20180612134930523248.jpg 服务号二维码.jpg