立即预约 立即预约
免费定制整装家居

免费定制整装家居

一站置家 全程无忧 一省到底
hide.png

当前位置: 首页 > 装修案例效果图 > 雅宾利花园

雅宾利花园 110平 现代简约风格效果图

收藏
案例风格 现代简约 案例户型 三居 案例面积 110平米
楼盘名称 雅宾利花园 设计师 林凤装饰全案设计师 案例类型 改善性住宅

设计理念:以原木色为主题的色彩,以简约现代为中心设计,打造全新的现代风格空间。

客厅
第1张
第2张
第3张
第4张
餐厅
第1张
卧室
第1张
卫生间
第1张
厨房
第1张
门厅
第1张
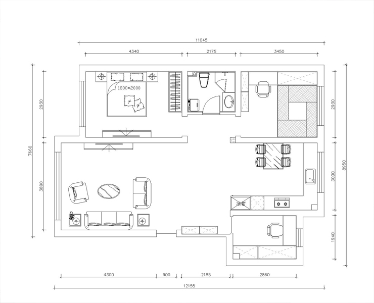
户型图
第1张
  • 案例详情

雅宾利花园-110平-现代风格-客厅.jpg 雅宾利花园-110平-现代风格-客厅2.jpg 雅宾利花园-110平-现代风格-客厅3.jpg 雅宾利花园-110平-现代风格-首图.jpg

雅宾利花园110平三室两厅现代风格林凤装饰的客厅棚墙面主要运用石膏板吊棚与浅灰和白色乳胶漆来体现区域的划分,背景墙使用浅灰色乳胶漆,原木色电视柜及边柜相互搭配,加大了空间的视觉效果,整体的客厅简约又舒适。通过室内家具简单富有内容的色彩打造现代风格的简约大气,温馨舒适。

雅宾利花园-110平-现代风格-厨房.jpg

雅宾利花园110平三室两厅现代风格林凤装饰的餐厅搭配木色跟客厅有一定呼应的岛台,白色、原木色椅子以及墙面爵士白得墙砖达到色彩统一性、和谐性的设计效果。

雅宾利花园-110平-现代风格-主卧室.jpg

雅宾利花园110平三室两厅现代风格林凤装饰的主卧室使用乳白色、浅灰色的软装配饰以及白木色家具为主,背景墙没有做复杂造型,靠左右两侧壁灯做出简约大气的效果,夜间得效果也是非常完美,辅助光源打开非常棒。这个空间中使用的材质以及色调显示出主人的喜好与品味。

雅宾利花园-110平-现代风格-卫生间.jpg

雅宾利花园110平三室两厅现代风格林凤装饰的卫生间地面墙面统一使用米黄色理石纹砖来体现地面与墙面的整体性以及增加空间的立体感,砖石玻璃的高反光的镜子,订制一体的洗手盆,明亮得浴屏,增加空间视觉效果,使其空间扩大化。

雅宾利花园-110平-现代风格-厨房2.jpg

雅宾利花园110平三室两厅现代风格林凤装饰的厨房冰箱和烤箱蒸箱大件电器一体融入整体橱柜中,作为敞开式厨房来讲,整体的颜色搭配不失厨房得美观性及功能性,且通过颜色把厨房和客厅完美得融入,达到敞开式厨房得中心思想。

雅宾利花园-110平-现代风格-门厅.jpg

雅宾利花园110平三室两厅现代风格林凤装饰的玄关

雅宾利花园-110平-现代风格-平面图.jpg

案例设计师

林凤装饰全案设计师

设计师:林凤装饰全案设计师

从业时间:8年

设计理念:设计改变生活

预约设计师

算算你家装修多少钱

报名即享丰厚赠品,品质装修

免费报价
咨询热线:400-656-9909
20190221103704574636.jpg

精品设计案例

20180612134930523248.jpg 服务号二维码.jpg