立即预约 立即预约
免费定制整装家居

免费定制整装家居

一站置家 全程无忧 一省到底
hide.png

当前位置: 首页 > 装修案例效果图 > 保利香槟

保利香槟 122平 轻奢风格效果图

收藏
案例风格 轻奢 案例户型 三居 案例面积 122平米
楼盘名称 保利香槟 设计师 林凤装饰设计师 案例类型 改善性住宅

设计理念:不做单一空间风格实际,实现整体混搭的高级感。提升空间层次

客厅
第1张
第2张
第3张
第4张
餐厅
第1张
卧室
第1张
卫生间
第1张
厨房
第1张
门厅
第1张
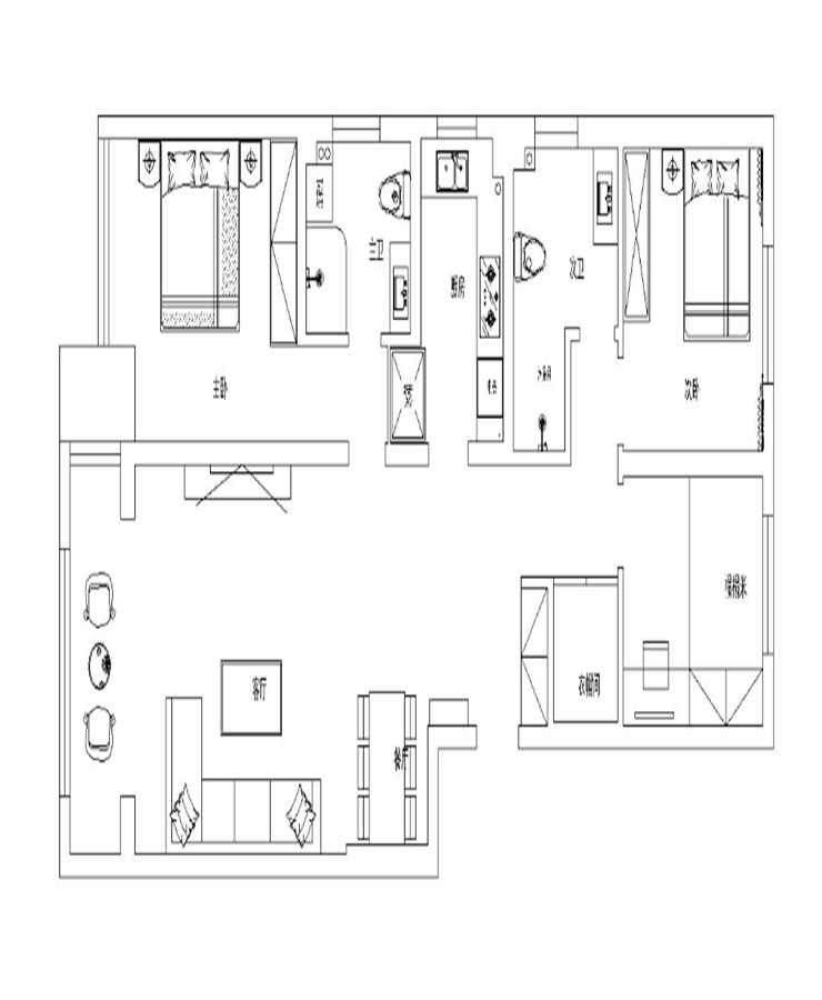
户型图
第1张
  • 案例详情

保利香槟国际-122㎡-港式轻奢混搭风格-客厅.jpg 保利香槟国际-122㎡-港式轻奢混搭风格-客厅1.jpg 保利香槟国际-122㎡-港式轻奢混搭风格-首图.jpg 保利香槟国际-122㎡-港式轻奢混搭风格-客厅3.jpg

保利香槟装122平三室两厅港式轻奢风格林凤装饰的客厅纯色直木纹护墙板的运用,让空间变得特别有品质 有情调 理石上墙 能让男主人的身份地位更加体现。

保利香槟国际-122㎡-港式轻奢混搭风格-(3).jpg

保利香槟装122平三室两厅港式轻奢风格林凤装饰的餐厅是整体的客厅风格的延续护墙板上墙 整个空间更具一体。也让色彩上有呼应 让餐厅不在单调。

保利香槟国际-122㎡-港式轻奢混搭风格-卧室.jpg

保利香槟装122平三室两厅港式轻奢风格林凤装饰的卧室延续着客厅的材质运用风格,增加色彩的修饰,整个个空间给人给予放松舒适的氛围,灰色给人舒适,又多了一些神秘感。

保利香槟国际-122㎡-港式轻奢混搭风格-卫生间.jpg

保利香槟装122平三室两厅港式轻奢风格林凤装饰的卫生间灰色调的主色搭配暖调的灯光、空间既温和又港式奢华的韵味。大气 有质感,有一种神秘感。

保利香槟国际-122㎡-港式轻奢混搭风格-厨房.jpg

保利香槟装122平三室两厅港式轻奢风格林凤装饰的U型橱柜最大化增加厨房使用面积,深木色的柜体和浅色的台面让厨房更具有层次感,整个空间看着干净整洁又不失大气稳重。

保利香槟国际-122㎡-港式轻奢混搭风格-门厅.jpg

保利香槟装122平三室两厅港式轻奢风格林凤装饰的玄关做为空间内的第一景尤为重要,干净素雅大方使空间更加大气。反光灯槽和同等挂画的搭配 让空间显得大气。

保利香槟国际-122㎡-港式轻奢混搭风格-平面图.jpg

案例设计师

林凤装饰设计师

设计师:林凤装饰设计师

从业时间:6年

设计理念:Less is more.

预约设计师

算算你家装修多少钱

报名即享丰厚赠品,品质装修

免费报价
咨询热线:400-656-9909
20190221103704574636.jpg

精品设计案例

20180612134930523248.jpg 服务号二维码.jpg