立即预约 立即预约
免费定制整装家居

免费定制整装家居

一站置家 全程无忧 一省到底
hide.png

当前位置: 首页 > 装修案例效果图 > 碧桂园大成印象

碧桂园大成印象 119平 北欧风格效果图

收藏
案例风格 北欧 案例户型 三居 案例面积 119平米
楼盘名称 碧桂园大成印象 设计师 林凤装饰设计师 案例类型 改善性住宅

设计理念:北欧风格主要体现为简约而不简单,都市快节奏,满足功能需求的同时,尽量让空间变得更加精炼。该案例以冷暖结合为基调,为业主创造出愉悦、舒适的居住氛围。

客厅
第1张
第2张
第3张
第4张
餐厅
第1张
卧室
第1张
第2张
卫生间
第1张
第2张
第3张
第4张
厨房
第1张
书房
第1张
第2张
门厅
第1张
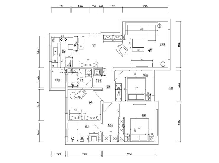
户型图
第1张
  • 案例详情

碧桂园大成印象-119平-北欧风格-客厅1.jpg 碧桂园大成印象-119平-北欧风格-客厅3.jpg 碧桂园大成印象-119平-北欧风格-客厅2.jpg 碧桂园大成印象-119平-北欧风格-首图.jpg

碧桂园大成印象119平三室两厅北欧风格林凤装饰的客厅比较宽敞,电视背景墙采用灰蓝色乳胶漆艺,简洁时尚的同时更给客厅颜色空间增加了对比感,后期一套现代化的家具和灯具瞬间让整个空间感觉更加时尚诙谐。

碧桂园大成印象-119平-北欧风格-餐厅.jpg

碧桂园大成印象119平三室两厅北欧风格林凤装饰的餐厅

碧桂园大成印象-119平-北欧风格-南次卧.jpg 碧桂园大成印象-119平-北欧风格-主卧.jpg

碧桂园大成印象119平三室两厅北欧风格林凤装饰的卧室温馨舒适的空间卧室,软包布艺床,现代化的休闲垂钓灯, 暖色的乳胶漆墙面,浑然一体瞬间把空间调控起来。

碧桂园大成印象-119平-北欧风格-客卫2.jpg 碧桂园大成印象-119平-北欧风格-客卫.jpg 碧桂园大成印象-119平-北欧风格-客卫3.jpg 碧桂园大成印象-119平-北欧风格-主卫.jpg

碧桂园大成印象119平三室两厅北欧风格林凤装饰的卫生间干湿分离设计,时尚的吊柜手盆和镜箱卫浴,把原有狭小的空间增添了艺术感,同时也满足了后期家人洗漱等诸多问题,最大的亮点就是镂空的金属隔断墙,因为它使整个空间变得更宽敞。

碧桂园大成印象-119平-北欧风格-厨房2.jpg

碧桂园大成印象119平三室两厅北欧风格林凤装饰的厨房和餐厅公用,年轻人的大胆想法,转角吧台式餐桌的运用,时尚的同时也能满足一家就餐的需求,开放式的厨房更加显得空间宽敞明亮

碧桂园大成印象-119平-北欧风格-书房.jpg 碧桂园大成印象-119平-北欧风格-书房2.jpg

碧桂园大成印象119平三室两厅北欧风格林凤装饰的书房

碧桂园大成印象-119平-北欧风格-门厅.jpg

碧桂园大成印象119平三室两厅北欧风格林凤装饰的玄关

碧桂园大成印象-119平-北欧风格-平面图.jpg

案例设计师

林凤装饰设计师

设计师:林凤装饰设计师

从业时间:10年

设计理念:用灵魂感知梦一般的空间

预约设计师

算算你家装修多少钱

报名即享丰厚赠品,品质装修

免费报价
咨询热线:400-656-9909
20190221103704574636.jpg

精品设计案例

20180612134930523248.jpg 服务号二维码.jpg