立即预约 立即预约
免费定制整装家居

免费定制整装家居

一站置家 全程无忧 一省到底
hide.png

当前位置: 首页 > 装修案例效果图 > 首创光和城

首创光和城 135平 北欧风格效果图

收藏
案例风格 北欧 案例户型 四居 案例面积 135平米
楼盘名称 首创光和城 设计师 林凤设计师 案例类型 改善性住宅

设计理念:本案装修风格定位为北欧,墙面局部做了灰色来增加立面的变化,地面以灰色地砖为主,搭配浅实木框架的家具。软装饰搭配纯棉,亚麻等天然材质,饰品摆件以陶器及多色玻璃。
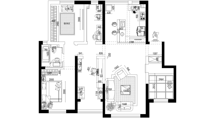
【户型分析】
优点:本案例户型有独立玄关,客厅与餐厅厨房同宽,墙体可拆改性很大。
缺点:东南卧室和正南卧室空间面积偏小。东南卧室门位置在客厅一侧,背景墙宽度不够

客厅
第1张
第2张
第3张
第4张
餐厅
第1张
卧室
第1张
卫生间
第1张
厨房
第1张
第2张
书房
第1张
第2张
户型图
第1张
首创光和城-135平-北欧风格-首图.jpg 首创光和城-135平-北欧风格-客厅03.jpg 首创光和城-135平-北欧风格-客厅01.jpg 首创光和城-135平-北欧风格-客厅05.jpg

首创光和城135平四室两厅北欧风格林凤装饰的客厅与书房墙面打通,布局没有改变,但是一米以上视野开阔,两个固定的空间变成了两个互通的空间,交流感很好。因为很少看电视,所以采用电动幕布设计,平时是卷到棚面的。

首创光和城-135平-北欧风格-餐厅和厨房02.jpg

首创光和城135平四室两厅北欧风格林凤装饰的餐厅

首创光和城-135平-北欧风格-主卧.jpg

首创光和城135平四室两厅北欧风格林凤装饰的南卧室、主卫和北卧室做成了套间,北卧做衣帽间和健身室,不用出卧室就能够满足大部分需求,无主灯设计,局部利用悬垂光源丰富光线层次,不占用上方空间。

首创光和城-135平-北欧风格-卫生间.jpg

首创光和城135平四室两厅北欧风格林凤装饰的卫生间主卫管道布局不合理造成空间利用率低。壁挂式坐便能解决管道问题,下水更通畅,卫生更好清理。长手盆与浴缸一体做下来的,方便打扫卫生。

首创光和城-135平-北欧风格-餐厅和厨房01.jpg 首创光和城-135平-北欧风格-餐厅和厨房03.jpg

首创光和城135平四室两厅北欧风格林凤装饰的厨房与餐厅作为混合空间,能满足聚会需求,大体量的吧台柜体内嵌蒸箱、烤箱等电器,还可以储藏很多杂物。

首创光和城-135平-北欧风格-书房01.jpg 首创光和城-135平-北欧风格-书房02.jpg

首创光和城135平四室两厅北欧风格林凤装饰的书房

首创光和城-135平-北欧风格-平面图.jpg

案例设计师

林凤设计师

设计师:林凤设计师

从业时间:20年

设计理念:您的梦想由我来实现。

预约设计师

算算你家装修多少钱

报名即享丰厚赠品,品质装修

免费报价
咨询热线:400-656-9909
20190221103704574636.jpg

精品设计案例

20180612134930523248.jpg 服务号二维码.jpg