立即预约 立即预约
免费定制整装家居

免费定制整装家居

一站置家 全程无忧 一省到底
hide.png

当前位置: 首页 > 装修案例效果图 > 融创沈阳府

融创沈阳府 145平 现代简约风格效果图

收藏
案例风格 现代简约 案例户型 四居 案例面积 145平米
楼盘名称 融创沈阳府 设计师 高阳 案例类型 改善性住宅

设计理念:整体设计是当下最流行的港式轻奢风、整体色调为高级灰、舒适明亮。

客厅
第1张
第2张
第3张
第4张
第5张
餐厅
第1张
第2张
卧室
第1张
卫生间
第1张
门厅
第1张
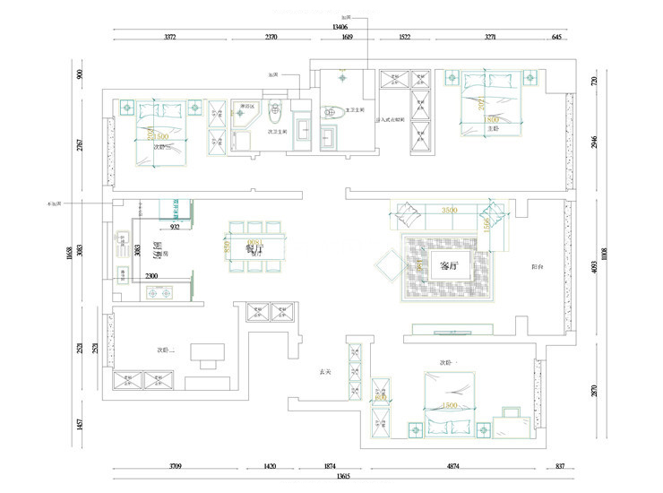
户型图
第1张
融创沈阳府-145平-现代风格-背景墙.jpg 融创沈阳府-145平-现代风格-客厅.jpg 融创沈阳府-145平-现代风格-客厅2.jpg 融创沈阳府-145平-现代风格-客厅3.jpg 融创沈阳府-145平-现代风格-沙发背景.jpg

融创沈阳府145平四室两厅现代风格林凤装饰的整个客厅、餐厅等地面采用同意铺灰色瓷砖、墙面大面积是浅灰色的壁纸、电视背景墙采用的是白色的理石、搭配咖色的护墙板、用爱马仕橘做点亮色、墙面、窗帘、沙发、等都有橘色的点缀、使整体画面更加和谐统一。

融创沈阳府-145平-现代风格-餐厅.jpg 融创沈阳府-145平-现代风格-餐厅2.jpg

融创沈阳府145平四室两厅现代风格林凤装饰的厨房配色采用灰色质感大理石砖呼应客厅背景墙,橱柜则采用白色漆面柜板衬托灰色的奢华感、因为平时在家做饭比较多、而且中餐较多、最后商量决定厨房还是安装一个大气的拉门、黑色矿体尽显低调奢华。

融创沈阳府-145平-现代风格-卧室.jpg

融创沈阳府145平四室两厅现代风格林凤装饰的卧室是休息的地方、整体也是采用跟其他空间同一个色系的配色、背景墙整面橘色的壁纸干净明亮、卧室的衣柜是通顶的定制嵌入式衣柜、定制衣柜的好处就是可以按照主人的要求和生活习惯来量身定做、使用起来更加方便、软装的搭配也起到决定性的作用、大面积咖色搭配橘色点亮。

融创沈阳府-145平-现代风格-卫生间.jpg

融创沈阳府145平四室两厅现代风格林凤装饰的卫生间是当下比较流行的白色小块网红砖做墙面。地面则采用的是对比色黑色小块网红砖、黑白对比层次更加明显。洗手盆等柜体也是采用整体按照卫生间尺寸定制的、多了许多收纳功能、空间运用更加合理、一点也不浪费、尤其是洗手盆小下面的悬空设计、卫生打扫起来非常方便。

融创沈阳府-145平-现代风格-门厅.jpg

融创沈阳府145平四室两厅现代风格林凤装饰的玄关

平面图.jpg

案例设计师

高阳

设计师:高阳

从业时间:11年

设计理念:有限空间、无限设计。

预约设计师

算算你家装修多少钱

报名即享丰厚赠品,享半价装修

免费报价
咨询热线:400-656-9909
20190221103704574636.jpg

精品设计案例

20180612134930523248.jpg 服务号二维码.jpg