立即预约 立即预约
免费定制整装家居

免费定制整装家居

一站置家 全程无忧 一省到底
hide.png

当前位置: 首页 > 装修案例效果图 > 金辉优步湖畔

金辉优步湖畔 115平 现代简约风格效果图

收藏
案例风格 现代简约 案例户型 四居 案例面积 115平米
楼盘名称 金辉优步湖畔 设计师 李雪 案例类型 婚房

设计理念:简约大气,家就是要简单温暖,富有爱心。现代风格宽敞大气,流露出自然,舒服的风格气息。

客厅
第1张
第2张
餐厅
第1张
第2张
第3张
第4张
卧室
第1张
卫生间
第1张
厨房
第1张
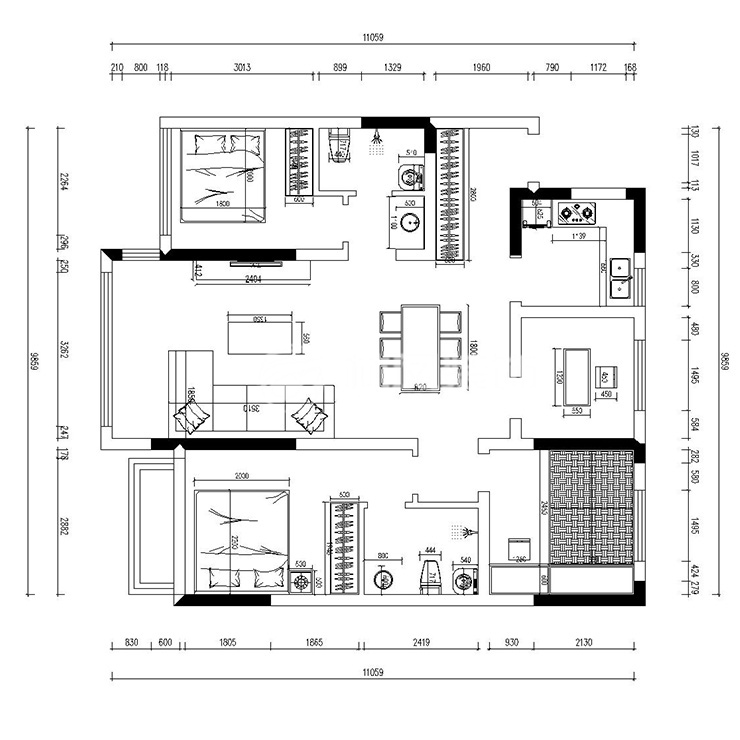
户型图
第1张
  • 案例详情

金辉优步湖畔-115平-简约风格-客厅.jpg 金辉优步湖畔-115平-简约风格-首图.jpg

金辉优步湖畔115平四室两厅现代简约风格林凤装饰的客厅以灰色和黑色进行衔接,客厅地面选用灰色的地砖与棚面采用了吊棚含灯带部位加上了金属线条,采用深灰色布艺沙发和灰色背景墙整体设计上都要求给人带来大气简约又很内敛的感觉,简约的空间布局让人感觉更加通畅。

金辉优步湖畔-115平-简约风格-餐厅.jpg 金辉优步湖畔-115平-简约风格-餐厅2.jpg 金辉优步湖畔-115平-简约风格-客厅3.jpg 金辉优步湖畔-115平-简约风格-客厅2.jpg

金辉优步湖畔115平四室两厅现代简约风格林凤装饰的餐厅区域选用了深色系的餐桌和餐椅,餐桌边缘有金色的金属线条让餐厅起到了画龙点睛的感觉,让餐厅看起来更加的精致,暖色系的灯光给人食欲,在餐桌的墙上挂了一副以黑色金黄色的装饰照片使整个餐厅空间与客厅衔接的更加完美。

金辉优步湖畔-115平-简约风格-卧室.jpg

金辉优步湖畔115平四室两厅现代简约风格林凤装饰的卧室是休息的地方业主不喜欢太鲜艳的颜色,喜欢质朴的感觉,卧室棚面采用了石膏线造型地面选择了铺贴灰色地板,卧室空间以灰色白色为主,墙上画龙点睛的挂画与卧室的床和衣柜颜的色彩都以灰白为主,风格更加的统一。

金辉优步湖畔-115平-简约风格-卫生间.jpg

金辉优步湖畔115平四室两厅现代简约风格林凤装饰的卫生间用了白色的瓷砖铺满了整个卫生间不会显得闷,白色的砖有拉伸视觉的效果,会显得卫生间很大,由于卫生间空间有些拥挤没有办法放浴屏但是区域的合理分化使卫生间使用起来宽敞舒适,实用起来更加的方便。

金辉优步湖畔-115平-简约风格-厨房.jpg

金辉优步湖畔115平四室两厅现代简约风格林凤装饰的厨房空间运用了L型橱柜,米白色的橱柜搭配白色石英石台面和浅色系色瓷砖互相呼应使厨房空间宽敞亮堂,厨房是做饭的区域,光线需要明亮一点才好,所以厨房更多的采用浅色系。

金辉优步湖畔-115平-简约风格-平面图.jpg

案例设计师

李雪

设计师:李雪

从业时间:6年

设计理念:设计源于生活,而又升华于生活。

预约设计师

算算你家装修多少钱

报名即享丰厚赠品,享半价装修

免费报价
咨询热线:400-656-9909
20190221103704574636.jpg

精品设计案例

20180612134930523248.jpg 服务号二维码.jpg