立即预约 立即预约
免费定制整装家居

免费定制整装家居

一站置家 全程无忧 一省到底
hide.png

当前位置: 首页 > 装修案例效果图 > 红田翠园

红田翠园 139平 新中式风格效果图

收藏
案例风格 新中式 案例户型 三居 案例面积 139平米
楼盘名称 红田翠园 设计师 林凤装饰设计师 案例类型 改善性住宅

设计理念:三室两厅一厨一卫,南北通透,采光好,通风好,业主做教务工作的,对中国文化也非常熟悉,所以选择新中式,会给人一种稳重大气的感觉,回到家办公也非常的 有心情。

客厅
第1张
第2张
第3张
第4张
餐厅
第1张
第2张
卧室
第1张
卫生间
第1张
厨房
第1张
阳台
第1张
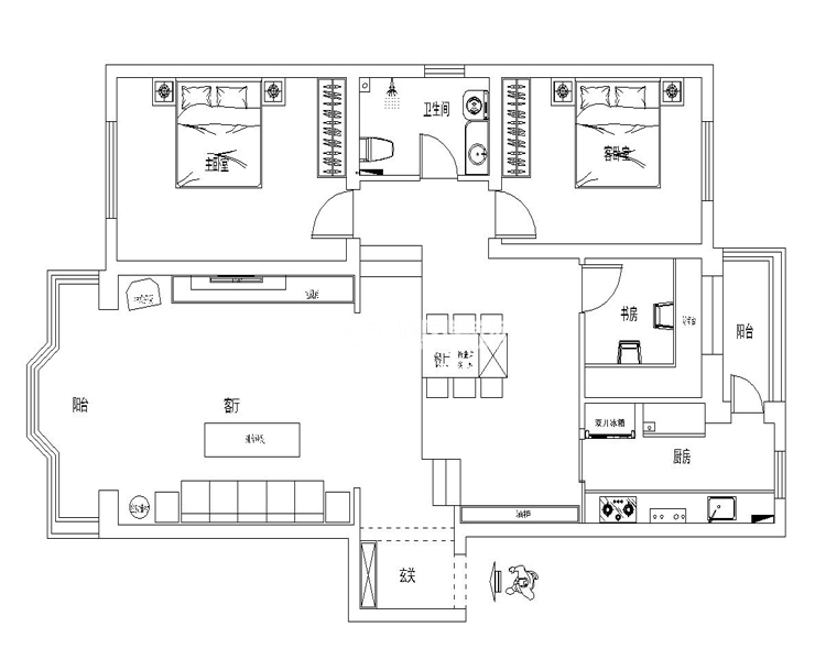
户型图
第1张
  • 案例详情

红田翠园-139平-新中式风格-客厅2.jpg 红田翠园-139平-新中式风格-客厅.jpg 红田翠园-139平-新中式风格-客厅3.jpg 红田翠园-139平-新中式风格-首图.jpg

红田翠园139平三室两厅新中式风格林凤装饰的客厅是业主认为最重要的地方,下班之后回到家第一眼看到的就是客厅,以及来客人,肯定是要在客厅款待的,电视背景墙选用大理石,两边选择屏风镜子,造型非常的适合新中式的风格,非常的上档次。沙发背景墙则选用挂画进行装饰,有主有次,大方得体。

红田翠园-139平-新中式风格-餐厅.jpg 红田翠园-139平-新中式风格-餐厅2.jpg

红田翠园139平三室两厅新中式风格林凤装饰的餐厅是一家人吃饭的地方,所以在设计方面上主要还是简单一些,不需要太多的造型进行装饰,在餐桌旁摆放餐边柜,方便了业主的生活,增加了储物空间,可以放酒杯等等一些琐碎的物品。让餐厅更加的干净整洁。

红田翠园-139平-新中式风格-卧室.jpg

红田翠园139平三室两厅新中式风格林凤装饰的卧室面积非常大,对于卧室来说,不需要做太复杂的吊棚,所以设计了一圈石膏线作为装饰,摆放衣柜双人床以及床头柜,两边的过道也是非常充足的,床头背景墙做了硬包设计,不会显得整面墙很空,也非常的上档次。

红田翠园-139平-新中式风格-卫生间.jpg

红田翠园139平三室两厅新中式风格林凤装饰的卫生间有窗户,采光还是很好的,选择白色的墙砖,非常的干净,不使用浴屏,可以增加卫生间的开阔感,选择带镜箱的浴室柜,可以摆放一些洗漱用品,可以保持卫生间的干净立整。

红田翠园-139平-新中式风格-厨房.jpg

红田翠园139平三室两厅新中式风格林凤装饰的厨房的面积较大,业主选用双开门冰箱,储存较多东西,对于橱柜的设计也是巧妙的利用空间,设计了两排下柜以及上柜,储物空间足够,选择有造型的门板,也是非常的大气。

红田翠园-139平-新中式风格-阳台.jpg

红田翠园139平三室两厅新中式风格林凤装饰的阳台

红田翠园-139平-新中式风格--户型图.jpg

案例设计师

林凤装饰设计师

设计师:林凤装饰设计师

从业时间:17年

设计理念:适合≠最好

预约设计师

算算你家装修多少钱

报名即享丰厚赠品,品质装修

免费报价
咨询热线:400-656-9909
20190221103704574636.jpg

精品设计案例

20180612134930523248.jpg 服务号二维码.jpg