立即预约 立即预约
免费定制整装家居

免费定制整装家居

一站置家 全程无忧 一省到底
hide.png

当前位置: 首页 > 装修案例效果图 > 中海城尚城

中海城尚城 135平 轻奢风格效果图

收藏
案例风格 轻奢 案例户型 三居 案例面积 135平米
楼盘名称 中海城尚城 设计师 林凤装饰全案设计师 案例类型 改善性住宅

设计理念:整体设计是现代时尚为切入点,做整体搭配,整个空间设计时尚,线条简约,不失实用。

客厅
第1张
第2张
第3张
餐厅
第1张
卧室
第1张
卫生间
第1张
第2张
厨房
第1张
儿童房
第1张
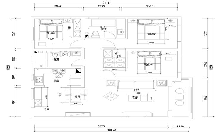
户型图
第1张
  • 案例详情

S6-姜宇-中海城尚城-135平-现代轻奢风格-客厅.jpg S6-姜宇-中海城尚城-135平-现代轻奢风格-客厅01.jpg S6-姜宇-中海城尚城-135平-现代轻奢风格-首图.jpg

中海城尚城135平三室两厅林凤装饰的客厅以现代轻奢风格为主,家具材质采用布艺感觉,舒适度非常高,灰色的地面,与电视墙面的理石进行呼应,棚面的线条增加时尚感,让原本简单的吊棚,增加时尚气息。

S6-姜宇-中海城尚城-135平-现代轻奢风格-餐厅.jpg

中海城尚城135平三室两厅现代轻奢风格林凤装饰的餐厅空间的设计手法与客厅相仿,颜色协调,空间统一。

S6-姜宇-中海城尚城-135平-现代轻奢风格-主卧室.jpg

中海城尚城135平三室两厅现代轻奢风格林凤装饰的卧室空间床头背景采用硬包与金属条的搭配,突出线条感和时尚感。让卧室空间不在单调。

S6-姜宇-中海城尚城-135平-现代轻奢风格-主卫生间.jpg S6-姜宇-中海城尚城-135平-现代轻奢风格-客卫生间.jpg

中海城尚城135平三室两厅现代轻奢风格林凤装饰的客卫生间空间,采用冷色系的理石瓷砖,让原本比较单调空间,通过理石墙砖的设计,在视觉上拉伸卫生间的空间。让空间具有延伸感。

S6-姜宇-中海城尚城-135平-现代轻奢风格-厨房.jpg

中海城尚城135平三室两厅现代轻奢风格林凤装饰的厨房的墙地砖为淡灰色,橱柜则采用两个对比颜色的门板,让原本单调的空间具有时尚感。

S6-姜宇-中海城尚城-135平-现代轻奢风格-儿童房.jpg

中海城尚城135平三室两厅现代轻奢风格林凤装饰的儿童房

S6-姜宇-中海城尚城-135平-现代轻奢风格-平面图.jpg

案例设计师

林凤装饰全案设计师

设计师:林凤装饰全案设计师

从业时间:12年

设计理念:应时而变,为未来生活而设计

预约设计师

算算你家装修多少钱

报名即享丰厚赠品,品质装修

免费报价
咨询热线:400-656-9909
20190221103704574636.jpg

精品设计案例

20180612134930523248.jpg 服务号二维码.jpg