立即预约 立即预约
免费定制整装家居

免费定制整装家居

一站置家 全程无忧 一省到底
hide.png

当前位置: 首页 > 装修案例效果图 > 锦园

锦园 450平 美式风格效果图

收藏
案例风格 美式 案例户型 别墅 案例面积 450平米
楼盘名称 锦园 设计师 林凤设计师 案例类型 改善性住宅

设计理念:整体设计是以美式造型,现代家具为主,整个空间设计明亮大方,没有风格的局限性。

客厅
第1张
第2张
第3张
第4张
餐厅
第1张
卧室
第1张
卫生间
第1张
厨房
第1张
休闲区
第1张
门厅
第1张
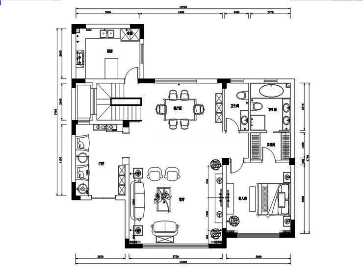
户型图
第1张
  • 案例详情

S6-杜丙乾-锦园-450平-美式风格-二层起居室.jpg S6-杜丙乾-锦园-450平-美式风格-负一层客厅.jpg S6-杜丙乾-锦园-450平-美式风格-客厅.jpg S6-杜丙乾-锦园-450平-美式风格-首图.jpg

锦园450平别墅美式风格林凤装饰的客厅以文化石作为背景墙,文化石肌理偏向舒适,整体色彩土黄色,配合实木色彩,材质,沉静,大气。

S6-杜丙乾-锦园-450平-美式风格-餐厅.jpg

锦园450平别墅美式风格林凤装饰的餐厅独立,高档家具,简单边柜,配上照片墙装饰,墙面无需复杂造型,高端有品位的人生赢家。

S6-杜丙乾-锦园-450平-美式风格-主卧室.jpg

锦园450平别墅美式风格林凤装饰的卧室是储藏式设计,定制衣柜完美的解决了成品衣柜储物空间分割不合理的情况,窗帘的选择也是令人耳目一新的,这样解决了空间不对称的问题。

S6-杜丙乾-锦园-450平-美式风格-卫生间.jpg

锦园450平别墅美式风格林凤装饰的卫生间以米色的墙砖,欧洲经典的宫廷色彩,美洲与欧洲一麦相成,圆形浴缸,理石包边,享受生活,洗手台与整体风格协调统一。

S6-杜丙乾-锦园-450平-美式风格-厨房.jpg

锦园450平别墅美式风格林凤装饰的厨房对于一些人,会设计的非常大,然而对他们,厨房够用就好,他们喜欢中餐,而且做饭不多,标准的厨房橱柜设计。色彩干净沉稳。

S6-杜丙乾-锦园-450平-美式风格-影音室.jpg

锦园450平别墅美式风格林凤装饰的影音室

S6-杜丙乾-锦园-450平-美式风格-门厅.jpg

锦园450平别墅美式风格林凤装饰的玄关

S6-杜丙乾-锦园-450平-美式风格-平面图.jpg

案例设计师

林凤设计师

设计师:林凤设计师

从业时间:10年

设计理念:

预约设计师

算算你家装修多少钱

报名即享丰厚赠品,品质装修

免费报价
咨询热线:400-656-9909
20190221103704574636.jpg

精品设计案例

20180612134930523248.jpg 服务号二维码.jpg