立即预约 立即预约
免费定制整装家居

免费定制整装家居

一站置家 全程无忧 一省到底
hide.png

当前位置: 首页 > 装修案例效果图 > 金辉优步学府

金辉优步学府 110平 现代简约风格效果图

收藏
案例风格 现代简约 案例户型 三居 案例面积 110平米
楼盘名称 金辉优步学府 设计师 林凤设计师 案例类型 改善性住宅

设计理念:本案是现代简约风格,主要是以简洁造型为主。所以本方案设计时整体的色调上选择的是灰白色搭配一些橙色软装配饰,室内的家具都是以简约好打理为主以及木色为主,凸显出现代简约的风格。

客厅
第1张
第2张
第3张
餐厅
第1张
卧室
第1张
第2张
儿童房
第1张
门厅
第1张
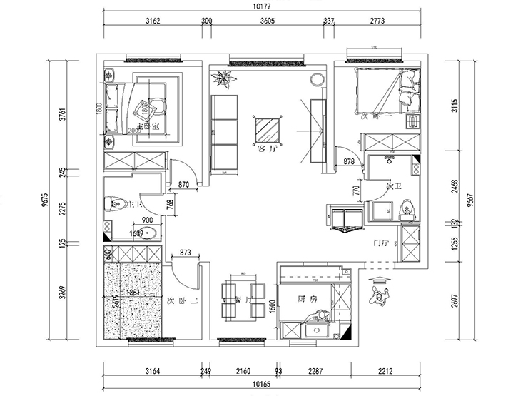
户型图
第1张
  • 案例详情

金辉优步学府-110平-现代风格- 客厅1.jpg 金辉优步学府-110平-现代风格- 客厅2.jpg 金辉优步学府-110平-现代风格- 首图.jpg

金辉优步学府110平三室两厅现代风格林凤装饰的客厅的空间吊顶造型比较简单都是以简单的简单的角线为主,电视背景墙没有加一些繁琐的造型,是以简单的电视柜组合形式为主,沙发墙后期按照主任的要求放置一组装饰画简约大气。

金辉优步学府-110平-现代风格- 餐厅.jpg

金辉优步学府110平三室两厅现代风格林凤装饰的餐厅棚顶角线将餐厅空间划分为独立区域,本案餐厅区浅胡桃木色餐桌,搭配同款色系的餐椅,吊灯与餐桌餐椅形成一个空间,整体与客厅空间相呼应。餐厅墙面放置一组和客厅的沙发墙上一样风格的装饰画,相互呼应。

金辉优步学府-110平-现代风格- 次卧室1.jpg 金辉优步学府-110平-现代风格- 主卧.jpg

【主卧室说明】主卧室床头背景墙刷了一面浅粉色的乳胶漆,看起来很温馨,衣柜是索菲亚定制柜。【北次卧说明】北次卧是榻榻米空间,主要是给老人住,整体颜色搭配要暖一些。

金辉优步学府-110平-现代风格- 次卧室2.jpg

金辉优步学府110平三室两厅现代风格林凤装饰的次卧室是儿童房也是床头墙面刷了些活泼的浅色乳胶漆,

金辉优步学府-110平-现代风格- 门厅.jpg

金辉优步学府110平三室两厅现代风格林凤装饰的玄关

金辉优步学府-110平-现代风格- 平面方案.jpg

案例设计师

林凤设计师

设计师:林凤设计师

从业时间:6年

设计理念:一切随心,用心去感悟空间

预约设计师

算算你家装修多少钱

报名即享丰厚赠品,品质装修

免费报价
咨询热线:400-656-9909
20190221103704574636.jpg

精品设计案例

20180612134930523248.jpg 服务号二维码.jpg