立即预约 立即预约
免费定制整装家居

免费定制整装家居

一站置家 全程无忧 一省到底
hide.png

当前位置: 首页 > 装修案例效果图 > 保利茉莉公馆

保利茉莉公馆 125平 轻奢风格效果图

收藏
案例风格 轻奢 案例户型 三居 案例面积 125平米
楼盘名称 保利茉莉公馆 设计师 张景新 案例类型 改善性住宅

设计理念:设计代表的是一种生活态度,家是品味的彰显。

客厅
第1张
第2张
第3张
第4张
餐厅
第1张
卧室
第1张
卫生间
第1张
厨房
第1张
衣帽间
第1张
过廊
第1张
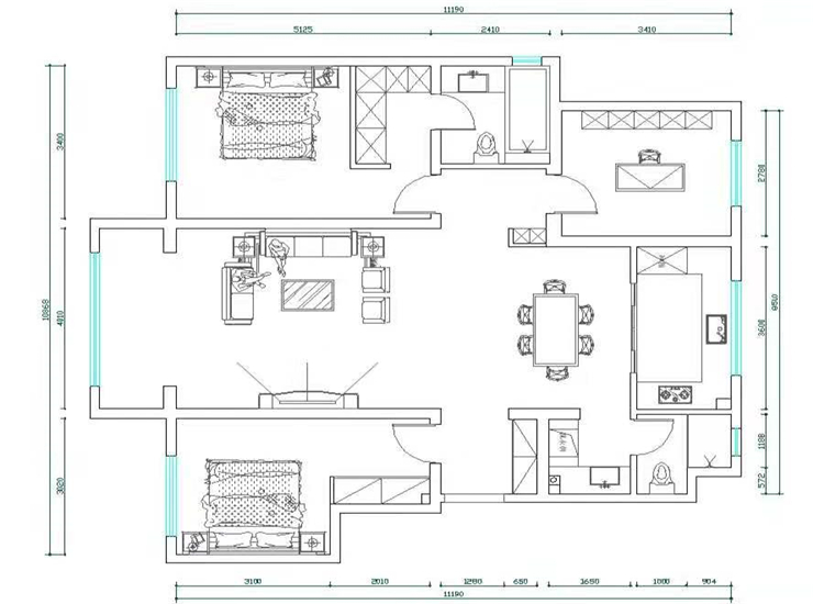
户型图
第1张
  • 案例详情

保利茉莉公馆-125平-轻奢风格-客厅 (3).jpg 保利茉莉公馆-125平-轻奢风格-客厅 (4).jpg 保利茉莉公馆-125平-轻奢风格-客厅 (5).jpg 保利茉莉公馆-125平-轻奢风格-首图.jpg

和平区保利茉莉公馆三室两厅轻奢风格林凤装饰的电视背景墙使用白色理石砖上墙,两侧搭配灰色护墙板,两侧搭配了壁灯,这几种元素相结合彰显了干净大气气派的感觉。

保利茉莉公馆-125平-轻奢风格-餐厅.jpg

和平区保利茉莉公馆三室两厅轻奢风格林凤装饰的餐桌是六人桌满足了用餐需求,餐厅顶面吊了一圈吊顶丰富了层次增加了辅助光源。餐厅背景墙一侧运用了造型护墙板体现了跟客厅的整体性。另一侧挂放了装饰时钟现代感十足。

保利茉莉公馆-125平-轻奢风格-卧室.jpg

和平区保利茉莉公馆三室两厅轻奢风格林凤装饰的主卧室采用灰色调,营造了宁静的感觉。床头背景贴了深色壁纸搭配两幅装饰画很有个性。米白色的床显得温馨时尚。深色地板搭配浅色地毯很有质感。

保利茉莉公馆-125平-轻奢风格-卫生间.jpg

和平区保利茉莉公馆三室两厅轻奢风格林凤装饰的卫生间采用灰色大理石墙砖显得很有整体性,壁柜浴室柜很有设计感,白色的马桶提亮了整个空间。

保利茉莉公馆-125平-轻奢风格-厨房.jpg

和平区保利茉莉公馆三室两厅轻奢风格林凤装饰的厨房做的是U型橱柜,最大限度满足使用功能整个空间非常宽敞,浅色砖搭配深色橱柜形成鲜明对比。白色石膏板的吊顶也很有档次。

保利茉莉公馆-125平-轻奢风格-衣帽间.jpg

和平区保利茉莉公馆三室两厅轻奢风格林凤装饰的衣帽间

保利茉莉公馆-125平-轻奢风格-客厅 (2).jpg

和平区保利茉莉公馆三室两厅轻奢风格林凤装饰的过廊

保利茉莉公馆-125平-轻奢风格-户型图.jpg

案例设计师

张景新

设计师:张景新

从业时间:6年

设计理念:合理的划分空间,让设计融入生活,营造自然,品味,格调

预约设计师

算算你家装修多少钱

报名即享丰厚赠品,享半价装修

免费报价
咨询热线:400-656-9909
20190221103704574636.jpg

精品设计案例

20180612134930523248.jpg 服务号二维码.jpg