立即预约 立即预约
免费定制整装家居

免费定制整装家居

一站置家 全程无忧 一省到底
hide.png

当前位置: 首页 > 装修案例效果图 > 中航城两河流域

中航城两河流域 145平 美式风格效果图

收藏
案例风格 美式 案例户型 三居 案例面积 145平米
楼盘名称 中航城两河流域 设计师 林凤设计师 案例类型 改善性住宅

设计理念:本案以简欧风格线条的美感为基本架构,搭配灰色墙面乳胶漆及白色家具配色突出层次感,为房主专属定制出她喜欢的简美混搭风格。

客厅
第1张
第2张
第3张
第4张
餐厅
第1张
卧室
第1张
卫生间
第1张
厨房
第1张
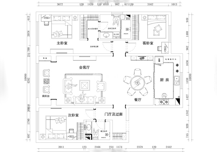
户型图
第1张
  • 案例详情

中航城两河流域-145㎡-美式风格-客厅 (7).jpg 中航城两河流域-145㎡-美式风格-客厅 (1).jpg 中航城两河流域-145㎡-美式风格-客厅 (3).jpg 中航城两河流域-145㎡-美式风格-客厅 (5).jpg

客厅背景墙以石膏板对称造型中间铺贴壁纸作为客厅的主设计亮点,沙发背景墙以欧式石膏线做框线米色壁纸搭配装饰画凸显空间层次,同时与家具遥相呼应。

中航城两河流域-145㎡-美式风格-客厅 (4).jpg

餐厅考虑到经常会客,所以选择美式圆形餐桌,方便多人就餐及会客。

中航城两河流域-145㎡-美式风格-卧室.jpg

主卧室以软包背景墙搭配布艺床品,直线吊棚搭配成品欧式石膏线来体现层次。

中航城两河流域-145㎡-美式风格-卫生间.jpg

卫生间仿大理石纹理瓷砖搭配欧式洁具,使得卫生间空间,高档大气。

中航城两河流域-145㎡-美式风格-厨房.jpg

厨房以欧式白色门型橱柜搭配仿古瓷砖,简介明亮。

中航城两河流域-145㎡-美式风格-平面施工图纸.jpg

案例设计师

林凤设计师

设计师:林凤设计师

从业时间:10年

设计理念:用心观察生活,感悟人生真谛,让设计与生活互动。

预约设计师

算算你家装修多少钱

报名即享丰厚赠品,享半价装修

免费报价
咨询热线:400-656-9909
20190221103704574636.jpg

精品设计案例

20180612134930523248.jpg 服务号二维码.jpg