立即预约 立即预约
免费定制整装家居

免费定制整装家居

一站置家 全程无忧 一省到底
hide.png

当前位置: 首页 > 装修案例效果图 > 金地锦城

金地锦城 78平 现代简约风格效果图

收藏
案例风格 现代简约 案例户型 二居 案例面积 78平米
楼盘名称 金地锦城 设计师 齐逢辉 案例类型 改善性住宅

设计理念:现代简约风主要采用黑.白.灰色作为空间主色彩,用鲜艳的颜色作为空间搭配色彩,结合简约时尚的家居,呈现出简约自然颜色对比强烈的现代简约风格。

客厅
第1张
第2张
第3张
餐厅
第1张
第2张
卧室
第1张
第2张
卫生间
第1张
厨房
第1张
门厅
第1张
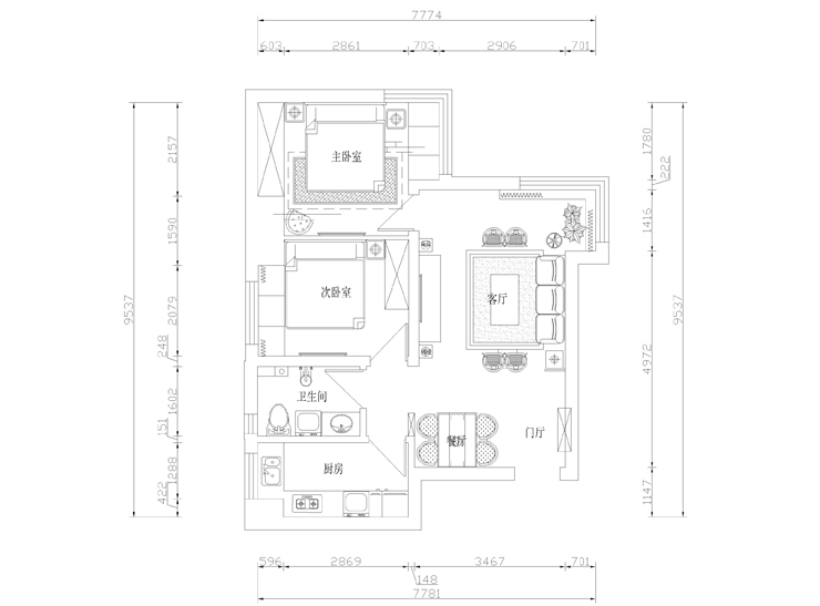
户型图
第1张
  • 案例详情

金地锦城-78平-现代简约-客厅1.jpg 金地锦城-78平-现代简约-客厅.jpg 金地锦城-78平-现代简约-首图.jpg

沈阳浑南区金地锦城78m²两室两厅林凤装饰的客厅非常符合现代简约的一个空间了,设计师以现代的装饰手法和家具,充分表达出现代简约,沙发采用布艺沙发搭配米黄的配饰呈现现代感,电视背景墙采用壁柜组合又增加收纳空间以及带来简约感。

金地锦城-78平-现代简约-餐厅.jpg 金地锦城-78平-现代简约-餐厅1.jpg

沈阳浑南区金地锦城78m²两室两厅林凤装饰的餐厅起到了连接的作用,采用深色的方桌。一侧装饰餐边柜,合理的利用空间。

金地锦城-78平-现代简约-卧室.jpg 金地锦城-78平现代简约-卧室1.jpg

沈阳浑南区金地锦城78m²两室两厅林凤装饰的卧室是整个屋内带有隐私的空间。卧室选择了嵌入式衣柜,衣柜到顶增大收纳空间,同时在窗下设计飘窗又能收纳又能休闲的功能,可以在飘窗上喝喝茶,看看书,晒晒太阳非常舒适的空间。

金地锦城-78平-现代简约-卫生间.jpg

沈阳浑南区金地锦城78m²两室两厅林凤装饰的卫生间则用现代的装饰彰显现代风。则采取花砖。镜子增大了原本面积很小的卫生间。休闲趣味十足。整体采用暖色砖看着比较温馨大气。

金地锦城-78平-现代简约-厨房.jpg

沈阳浑南区金地锦城78m²两室两厅林凤装饰的厨房与餐厅并没有连接在一起,厨房选择的封闭式。为了不显得千篇一律,厨房大量使用防石材瓷砖,冷色调把厨房的干净表现的淋漓尽致。用深浅搭配的橱柜颜色彰显出颜色的层次感。

金地锦城-78平-现代简约-门厅.jpg

沈阳浑南区金地锦城78m²两室两厅林凤装饰的玄关

金地锦城-78平-现代简约-户型图.jpg

案例设计师

齐逢辉

设计师:齐逢辉

从业时间:12年

设计理念:设计为王,只有新颖的设计才会在大浪淘沙中闪烁出与众不同的光芒。

预约设计师

算算你家装修多少钱

报名即享丰厚赠品,品质装修

免费报价
咨询热线:400-656-9909
20190221103704574636.jpg

精品设计案例

20180612134930523248.jpg 服务号二维码.jpg