立即预约 立即预约
免费定制整装家居

免费定制整装家居

一站置家 全程无忧 一省到底
hide.png

当前位置: 首页 > 装修案例效果图 > 碧桂园方糖

碧桂园方糖 105平 现代简约风格效果图

收藏
案例风格 现代简约 案例户型 三居 案例面积 105平米
楼盘名称 碧桂园方糖 设计师 沈阳林凤装饰 案例类型 改善性住宅

设计理念:本设计主要以深色调黑白灰色调为主,整体偏向于现代风格,颜色大气,室内简约,充分反应当代年轻人的生活习惯。

客厅
第1张
第2张
第3张
餐厅
第1张
卧室
第1张
第2张
卫生间
第1张
厨房
第1张
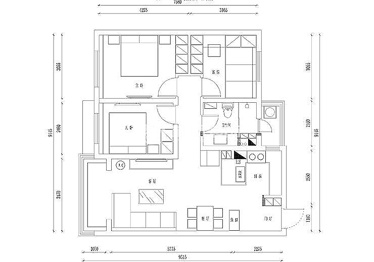
户型图
第1张
  • 案例详情

碧桂园方糖-105平-现代风格-电视墙.jpg 碧桂园方糖-105平-现代风格-客厅.jpg 碧桂园方糖-105平-现代风格-客厅 (2).jpg

碧桂园方糖105m²三室两厅现代风格林凤装饰的客厅区域整体以灰色白色为主,电视背景墙则使用了木色的组合柜,与理石的茶几和灰色的布艺沙发相协调,使得空间整体宽敞明亮而不沉闷。金属的环形灯饰增加了现代感,同时使空间的线条简洁而不单调。

碧桂园方糖-105平-现代风格-餐厅.jpg

碧桂园方糖105m²三室两厅现代风格林凤装饰的餐厅空间的餐桌采用实木材质的台面与金属质感的桌腿,同样选择了金属的环形吊灯,使餐厅的整体颜色与线条与客厅相互呼应,浑然一体。使用水族箱与玄关做了巧妙的隔断,同时作为点缀,使整体相对沉稳的空间显得温馨自然,充满生机。

碧桂园方糖-105平-现代风格-卧室.jpg 碧桂园方糖-105平-现代风格-卧室1.jpg

碧桂园方糖105m²三室两厅现代风格林凤装饰的卧室以灰色调为主。灰色的床头背景墙和地板,与深色的家具和木门相互协调,使卧室空间显得更加舒适而恬静。带虚光的透明玻璃门衣橱的使用,以及床头背景墙上金属装饰的点缀,增加了空间的现代元素,使整个卧室沉稳而不沉闷,简约而不简单。

碧桂园方糖-105平-现代风格-卫生间.jpg

碧桂园方糖105m²三室两厅现代风格林凤装饰的卫生间

碧桂园方糖-105平-现代风格-厨房.jpg

碧桂园方糖105m²三室两厅现代风格林凤装饰的厨房

碧桂园方糖-105平-现代风格-平面图.jpg

案例设计师

沈阳林凤装饰

设计师:沈阳林凤装饰

从业时间:12年

设计理念:我们不是艺术家,我们只是用艺术的手法来做实用的东西。

预约设计师

算算你家装修多少钱

报名即享丰厚赠品,享半价装修

免费报价
咨询热线:400-656-9909
20190221103704574636.jpg

精品设计案例

20180612134930523248.jpg 服务号二维码.jpg