立即预约 立即预约
免费定制整装家居

免费定制整装家居

一站置家 全程无忧 一省到底
hide.png

当前位置: 首页 > 装修案例效果图 > 金辉优步学府

金辉优步学府 110平 现代简约风格效果图

收藏
案例风格 现代简约 案例户型 三居 案例面积 110平米
楼盘名称 金辉优步学府 设计师 林凤设计师 案例类型 改善性住宅

设计理念:现代风格的特色是将设计的元素、色彩、照明、原材料简化到最少的程度。但是对材料的色彩质感要求很高。因此,简约的空间设计非常含蓄,往往能起到以少胜多,以简胜繁的效果。艺术创意宜简不宜繁,宜藏不宜显(齐白石语),这些都是对简洁最精辟的阐述。简约的美式风格,一般称为简美,少了雕花多了现代元素。
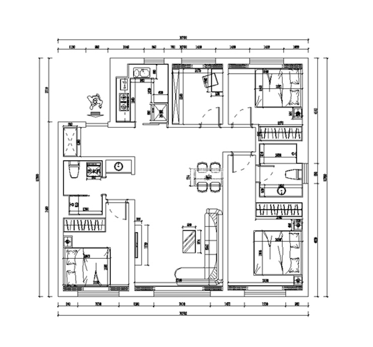
户型痛点分析:进门玄关位置狭窄,小卧室门口处动线不清晰,北卧室小.

客厅
第1张
第2张
餐厅
第1张
卧室
第1张
卫生间
第1张
厨房
第1张
书房
第1张
儿童房
第1张
门厅
第1张
户型图
第1张
  • 案例详情

金辉优步学府-110平-现代风格-客厅.jpg 金辉优步学府-110平-现代风格-首图.jpg

金辉优步学府110㎡三室两厅现代风格林凤装饰的整个客厅以简单大方的现代为主,简单整洁的电视墙与沙发墙,沙发墙上挂一幅大方优雅的装饰画,搭配上舒适精致的布艺沙发和单人沙发,显得随意而舒适。设计师在视觉上舍弃张扬的表象,通过对线条与色块的巧妙应用,让人回归生活的本真与轻松,于轻纱帷幔下安于一隅,欣赏繁华盛世的宁静淡然,是岁月的沉淀,更是生活的自由安然。

金辉优步学府-110平-现代风格-餐厅.jpg

金辉优步学府110㎡三室两厅现代风格林凤装饰的餐厅位于客厅的一侧,中间用棚顶造型用来划分客厅餐厅的区域,餐厅区域两侧加上暖色调筒灯,与客厅棚顶相呼应。

金辉优步学府-110平-现代风格-卧室.jpg

金辉优步学府110㎡三室两厅现代风格林凤装饰的卧室采用浅黄色的主色调,整个空间充满了年轻向上的活力满满的感觉。

金辉优步学府-110平-现代风格-卫生间.jpg

金辉优步学府110㎡三室两厅现代风格林凤装饰的卫生间大理石的冷峻,理性中带着自然纹路。木制温润,简约的造型把天然机理裸露,情感中内秀谦和,个性张扬,搭配绿色生命,满屏生机,充满春意。

金辉优步学府-110平-现代风格-厨房.jpg

金辉优步学府110㎡三室两厅现代风格林凤装饰的厨房壁砖偏暖色的颜色,地砖与客厅餐厅的砖的材料用一样的,让这个空间相互呼应,厨房采用L型橱柜丰富的利用了整个空间,采用的推拉门,用推拉门让整个空间显得更宽敞明亮,同时还防止了油烟的问题。

金辉优步学府-110平-现代风格-书房.jpg

金辉优步学府110㎡三室两厅现代风格林凤装饰的书房

金辉优步学府-110平-现代风格-儿童房.jpg

金辉优步学府110㎡三室两厅现代风格林凤装饰的儿童房

金辉优步学府-110平-现代风格-门厅.jpg

金辉优步学府110㎡三室两厅现代风格林凤装饰的玄关

金辉优步学府-110平-现代风格-户型图.jpg

案例设计师

林凤设计师

设计师:林凤设计师

从业时间:8年

设计理念:一切随心,用心去感悟空间

预约设计师

算算你家装修多少钱

报名即享丰厚赠品,享半价装修

免费报价
咨询热线:400-656-9909
20190221103704574636.jpg

精品设计案例

20180612134930523248.jpg 服务号二维码.jpg