立即预约 立即预约
免费定制整装家居

免费定制整装家居

一站置家 全程无忧 一省到底
hide.png

当前位置: 首页 > 装修案例效果图 > 玖城乐府

玖城乐府 158平 现代简约风格效果图

收藏
案例风格 现代简约 案例户型 复式 案例面积 158平米
楼盘名称 玖城乐府 设计师 王松 案例类型 改善性住宅

设计理念:本设计方案以现代风格为主,主色系为黑白灰,在此基础上添加了轻奢的元素,为客户打造一个现代轻奢的婚房。

客厅
第1张
第2张
第3张
第4张
餐厅
第1张
第2张
卧室
第1张
第2张
卫生间
第1张
厨房
第1张
书房
第1张
第2张
过廊
第1张
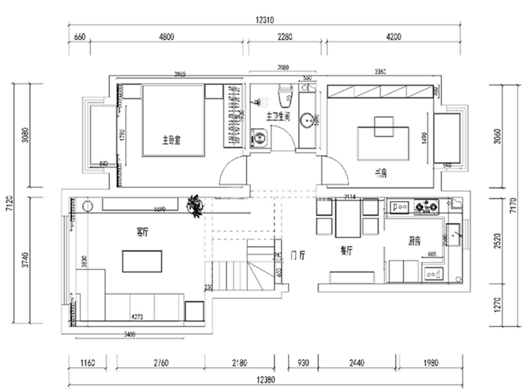
户型图
第1张
  • 案例详情

玖城乐府-158平-现代风格-客厅 (3).jpg 玖城乐府-158平-现代风格-客厅.jpg 玖城乐府-158平-现代风格-客厅 (4).jpg 玖城乐府-158平-现代风格-首图.jpg

玖城乐府158m²5居室现代风格林凤装饰的客户在抖音上关注了很多这种INS网红风格,在和客户探讨过几个视频里的喜好,发现客户比较喜欢金属元素及白色的爵士白理石纹理,所以在做本案设计的时候添加这些元素,在电视背景墙的考虑上选用了既美观又实用对的原则,定制的理石背景墙加壁柜的设计。沙发背景墙采用了和棚顶呼应的金属条材质,确保整个效果的完整性。

玖城乐府-158平-现代风格-餐厅 (2).jpg 玖城乐府-158平-现代风格-餐厅.jpg

玖城乐府158m²5居室现代风格林凤装饰的餐桌的材质上也考虑了整体性,餐桌的台面也采用了爵士白理石。餐腿部分用了黑色木质,墙面搭配了雾霾蓝的调色乳胶漆。

玖城乐府-158平-现代风格-主卧室.jpg 玖城乐府-158平-现代风格-主卧室 (2).jpg

玖城乐府158m²5居室现代风格林凤装饰的卧室是休息的地方,原木色能让人感到心情舒畅,灰色调的床头背景搭配原木色的床头,使空间整体感更强,达到了业主想要的效果 。

玖城乐府-158平-现代风格-卫生间.jpg

玖城乐府158m²5居室现代风格林凤装饰的卫生间整体采用了深浅搭配的墙地砖,搭配木色的浴室柜,两种颜色完美的结合在一起,使空间更具高级感。

玖城乐府-158平-现代风格-厨房.jpg

玖城乐府158m²5居室现代风格林凤装饰的厨房主要以爵士白的瓷砖搭配白色橱柜,采用爵士白的瓷砖为了呼应背景墙的爵士白瓷砖。

玖城乐府-158平-现代风格-书房.jpg 玖城乐府-158平-现代风格-书房 (2).jpg

玖城乐府158m²5居室现代风格林凤装饰的书房

玖城乐府-158平-现代风格-过廊.jpg

玖城乐府158m²5居室现代风格林凤装饰的过廊

玖城乐府-158平-现代风格-平面图.png

案例设计师

王松

设计师:王松

从业时间:10年

设计理念:品味生活,从家开始

预约设计师

算算你家装修多少钱

报名即享丰厚赠品,享半价装修

免费报价
咨询热线:400-656-9909
20190221103704574636.jpg

精品设计案例

20180612134930523248.jpg 服务号二维码.jpg