立即预约 立即预约
免费定制整装家居

免费定制整装家居

一站置家 全程无忧 一省到底
hide.png

当前位置: 首页 > 装修案例效果图 > 龙湖西府原著

龙湖西府原著 115平 现代简约风格效果图

收藏
案例风格 现代简约 案例户型 三居 案例面积 115平米
楼盘名称 龙湖西府原著 设计师 林凤设计师 案例类型 改善性住宅

设计理念:现代,精致,是沟通之初得到的反馈,以客户为本,是我们量身定制的基础,精致艺术,回归生活本色,满足他们对家的渴望。
设计说明:业主钟爱现代,精致的格调,从空间出发,将玄关和卧室稍稍改动,利用碎片空间完成合理收纳,软装借助绒布提升精致感,金属线条提升高级感,完成客户追求

客厅
第1张
第2张
餐厅
第1张
卧室
第1张
第2张
卫生间
第1张
厨房
第1张
儿童房
第1张
门厅
第1张
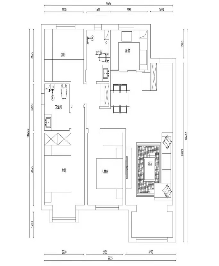
户型图
第1张
  • 案例详情

龙湖西府原著-115平-现代风格-客厅.jpg 龙湖西府原著-115平-现代风格-首图.jpg

龙湖西府原著115平三室两厅现代风格林凤装饰的客厅墙面选用莫兰迪色,背景墙石膏线框留白,唯美且个性,软装采用暖色调,平衡空间饱和度,冷暖搭配,演绎多元,时髦感。

龙湖西府原著-115平-现代风格-餐厅.jpg

龙湖西府原著115平三室两厅现代风格林凤装饰的餐桌使用木质餐桌,搭配编织餐椅,让餐厅回归自然,又增加空间的活泼感,餐吊呼应客厅吊灯,暖光衬托就餐氛围,这样的餐厅没人不爱吧。

龙湖西府原著-115平-现代风格-主卧1.jpg 龙湖西府原著-115平-现代风格-主卧2.jpg

龙湖西府原著115平三室两厅现代风格林凤装饰的主卧采用高级灰的颜色,一直觉得灰色才是神秘色,可盐可甜,高冷且柔和,背景墙布艺硬包,斜线拉伸整体举架,暖色床品,暖光灯温馨助眠

龙湖西府原著-115平-现代风格-卫生间.jpg

龙湖西府原著115平三室两厅现代风格林凤装饰的卫生间浅灰搭配花片,圆圆的防雾镜既美观又不失功能性,台上盆简约大气,蓝色柜体描金把手提升了质感

龙湖西府原著-115平-现代风格-厨房.jpg

龙湖西府原著115平三室两厅现代风格林凤装饰的业主原本喜欢美式,后来经过一番斗争,选择了现代,而厨房是唯一偏点美式感觉的,美式复古墙砖,搭配莫兰迪色系柜子,AB板的上下柜视觉感很好,业主酷爱做美食,U型橱柜满足储物功能的时候,在功能配备上也足够了。

龙湖西府原著-115平-现代风格-儿童房.jpg

龙湖西府原著115平三室两厅现代风格林凤装饰的业主有一个可爱的小儿子,儿童房也是根据小帅哥的喜好设计的,蓝色充满想象力,拼接色的衣柜连着书桌可爱活泼。

龙湖西府原著-115平-现代风格-玄关.jpg

龙湖西府原著115平三室两厅现代风格林凤装饰的玄关

龙湖西府原著-115平-现代风格-平面图.jpg

案例设计师

林凤设计师

设计师:林凤设计师

从业时间:5年

设计理念:为生活而设计,设计源于懂生活

预约设计师

算算你家装修多少钱

报名即享丰厚赠品,享半价装修

免费报价
咨询热线:400-656-9909
20190221103704574636.jpg

精品设计案例

20180612134930523248.jpg 服务号二维码.jpg