立即预约
免费定制整装家居
一站置家 全程无忧 一省到底
设计理念:本案是现代风格,简单与使用并存。电视背景墙结合碳钢条做造型,凸出了现代风格的特点。客厅的地砖也是现代风格最流行的灰色,整体的颜色偏于黑白灰!
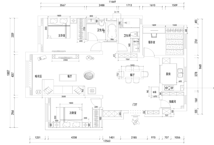
保利茉莉公馆130平三室两厅现代风格林凤装饰的客厅的吊顶采用回字形直线边棚,内藏灯槽,背景墙采用地砖上墙,规格为1200*600做切割,瓷砖的收边采用古铜色碳钢条,背景墙的两侧采用壁布。沙发采用高级灰色,抱枕用亮色点缀。
保利茉莉公馆130平三室两厅现代风格林凤装饰的餐厅的格局是跟客厅连体的,由于客户居住人口多,所以餐桌采用的是1600*800的,餐桌边上定制了一个酒柜,平时房主也换喝点红酒。餐厅的吊顶是跟客厅做的连体,整体区域为一个整体,餐厅的吊灯凸出了现代风格的感觉。
【主卧室说明】卧室的墙面采用纯灰色的壁布,地板采用原木色地板,衣柜用的是深木纹色的,客户不喜欢家具是浅色的,但是卧室又不能太暗,毕竟卧室的休息的地方,所以在材质运用上挑选的都是中色系的家具包括配色也是如此。
保利茉莉公馆130平三室两厅现代风格林凤装饰的卫生间的墙砖用的是米黄色,由于是三室两卫的户型,其中一个卫生间做的冷色系,这个卫生间做的是暖色系,手盆跟洗衣机采用的是定制的,定制的手盆看着比较大气,卫生间的墙砖采用300*600的尺寸正向铺贴。
保利茉莉公馆130平三室两厅现代风格林凤装饰的厨房的墙砖采用的是300*600规格的爵士白大理石纹瓷砖,橱柜采用的是纳米UV漆,上柜用的是白色,下柜用的是深色,这样可以形成强烈的对比。
精品设计案例
设计说明:
三室两厅一厨两卫,高层整体采用美式风格,色调以深色为主,体现美式的居家感和温馨感。
设计说明:
本案业主为年轻时尚小两口,所以我们考虑到未来想要给未来宝宝一个温馨舒适的一个房间,所以本案整体采用现代风格的手法,运用颜色,来打造整体空间的设计感及时尚感
设计说明:
本案以北欧风格为主题的设计,北欧风格能以现代、简洁、自然的特点俘获人心,所营造出来的生活氛围会让人倍感舒适与自在。
设计说明:
客户是一名成功人士,对于家的执念就是简单干净,客户衣服比较多,所以把每个空间都做了大衣柜,并且融入到设计里