立即预约 立即预约
免费定制整装家居

免费定制整装家居

一站置家 全程无忧 一省到底
hide.png

当前位置: 首页 > 装修案例效果图 > 金辉中央云著

金辉中央云著 106平 现代简约风格效果图

收藏
案例风格 现代简约 案例户型 三居 案例面积 106平米
楼盘名称 金辉中央云著 设计师 仲崇彤 案例类型 改善性住宅

设计理念:简约是整体的风格体现,线条感和胡桃的木质颜色,大面积采用纯色的灰色,给室内增加内容。

客厅
第1张
第2张
第3张
餐厅
第1张
第2张
卧室
第1张
第2张
卫生间
第1张
厨房
第1张
门厅
第1张
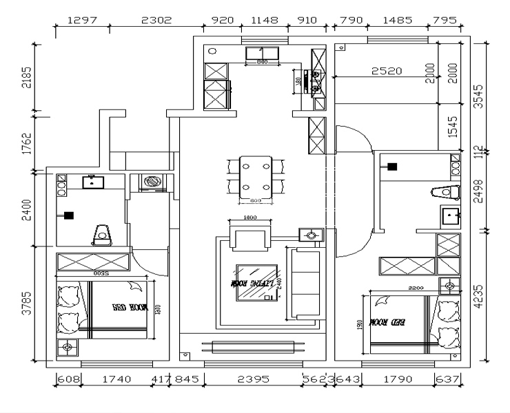
户型图
第1张
  • 案例详情

金辉中央云著-106平-现代风格-首图.jpg 金辉中央云著-106平-现代风格-客厅.jpg 金辉中央云著-106平-现代风格-客厅2.jpg

金辉中央云著106平三室两厅现代风格林凤装饰的客厅整体以灰色为主,胡桃色做沙发护墙板,棚顶做了点点缀灯光。沙发主色彩是灰色,采用橘色搭配,和窗帘形成了一个很好地风景。

金辉中央云著-106平-现代风格-餐厅.jpg 金辉中央云著-106平-现代风格-餐厅2.jpg

金辉中央云著106平三室两厅现代风格林凤装饰的餐厅黑色调线条吊灯,搭配理石桌面,光感很强的通透拉门映射整体空间的质感,看出来,整个餐厅被柜子包围,那么在色彩上采用的大面积白色门的柜子,套深色木纹的柜体,秩序错落有致。

金辉中央云著-106平-现代风格-卧室.jpg 金辉中央云著-106平-现代风格-卧室2.jpg

金辉中央云著106平三室两厅现代风格林凤装饰的卧室男主人很喜欢胡桃色,卧室喜欢明亮一些,他办公的地方比较灰暗,所以卧室尽力明亮。

金辉中央云著-106平-现代风格-卫生间.jpg

金辉中央云著106平三室两厅现代风格林凤装饰的卫生间深色系瓷片,配搭白色洁具,大气,白色的灯光,卫生间喜欢冷冷的感觉。

金辉中央云著-106平-现代风格-厨房.jpg

金辉中央云著106平三室两厅现代风格林凤装饰的厨房整体白色柜体,带黑色隐形拉手,配搭灰白纹理的理石砖,整体厨房看起来很干净,大气。

金辉中央云著-106平-现代风格-过厅2.jpg

金辉中央云著106平三室两厅现代风格林凤装饰的玄关

金辉中央云著-106平-现代风格-户型图.jpg

案例设计师

仲崇彤

设计师:仲崇彤

从业时间:15年

设计理念:设计就是着重于点、线、面的灵活运用,把整个环境营造出家的温馨。

预约设计师

算算你家装修多少钱

报名即享丰厚赠品,品质装修

免费报价
咨询热线:400-656-9909
20190221103704574636.jpg

精品设计案例

20180612134930523248.jpg 服务号二维码.jpg