立即预约 立即预约
免费定制整装家居

免费定制整装家居

一站置家 全程无忧 一省到底
hide.png

当前位置: 首页 > 装修案例效果图 > 孔雀城

孔雀城 95平 现代简约风格效果图

收藏
案例风格 现代简约 案例户型 三居 案例面积 95平米
楼盘名称 孔雀城 设计师 林凤设计师 案例类型 改善性住宅

设计理念:本次设计以现代风格为主题,以简洁明快的造型诠释。

客厅
第1张
第2张
第3张
餐厅
第1张
卧室
第1张
卫生间
第1张
厨房
第1张
过廊
第1张
第2张
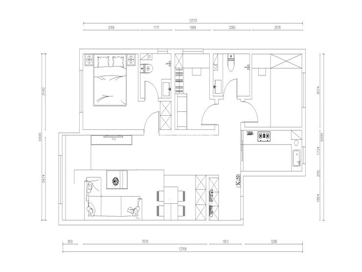
户型图
第1张
孔雀城-95㎡-现代风格-客厅 2.jpg 孔雀城-95㎡-现代风格-客厅 4.jpg 孔雀城-95㎡-现代风格-客厅 3.jpg

孔雀城95平三室两厅现代风格林凤装饰的客厅电视背景墙以组合柜的形式,简单美观,提高储物收纳空间,墙面以灰色白色为主,凸显整个空间的层次感。

孔雀城-95㎡-现代风格-客厅.jpg

孔雀城95平三室两厅现代风格林凤装饰的餐厅墙面以灰色乳胶漆为主题色,结合多功能吧台,提高生活品质,以四人位餐桌为主题,配上现代感极强的吊顶,结合简约的餐桌样式,尽显现代风格的线条感。

孔雀城-95㎡-现代风格-卧室.jpg

孔雀城95平三室两厅现代风格林凤装饰的卧室以蓝色乳胶漆作为床头背景墙,凸显卧室独立空间设计,以标准的双人位,结果布艺的窗帘,窗帘的选择上,以百分之80的遮光帘为主,选择金属质感的吊顶,在衣柜的选择上,业主选择了成品家具。

孔雀城-95㎡-现代风格-卫生间.jpg

孔雀城95平三室两厅现代风格林凤装饰的卫生间以灰色墙砖为主题色,凸显主人个性,成品的洁具,选择了只能坐便,同时我们在坐便的旁边,加配了一个坐便伴侣,主要为了清洗卫生间的方便,可移动式的高压水龙头。

孔雀城-95㎡-现代风格-厨房.jpg

孔雀城95平三室两厅现代风格林凤装饰的厨房选择AB版橱柜,结合灰色墙砖,提高厨房档次,在吊柜处,选择可拆卸的线条灯,线条灯,整体提高厨房的档次,同时也让主人在使用时,提高明亮度。

孔雀城-95㎡-现代风格-过廊.jpg 孔雀城-95㎡-现代风格-过廊2.jpg

孔雀城95平三室两厅现代风格林凤装饰的过廊

孔雀城-95㎡-现代风格-平面图.jpg

案例设计师

林凤设计师

设计师:林凤设计师

从业时间:7年

设计理念:人为生活而设计,设计为生活而存在。

预约设计师

算算你家装修多少钱

报名即享丰厚赠品,享半价装修

免费报价
咨询热线:400-656-9909
20190221103704574636.jpg

精品设计案例

20180612134930523248.jpg 服务号二维码.jpg