立即预约
免费定制整装家居
一站置家 全程无忧 一省到底
设计理念:色块,深色地,深色墙,白棚面,带点金属质感,后现代感极强。
案例详情
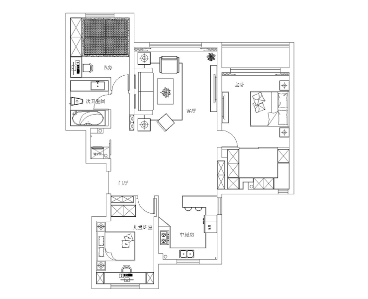
保利茉莉公馆122平三居室现代风格林凤装饰的客厅比较抢眼的是背景墙质感以理石于护墙板为主做的隐藏门效果,与背景墙45°对着的是儿童卧室,卧室门为了配合背景墙也同样做的通体色块。
保利茉莉公馆122平三居室现代风格林凤装饰的餐厅白色理石纹理的餐桌,和背景墙结合在一起做的配饰颜色。搭配黑色的木质桌腿,配上暖灰一点的餐椅,外加上线条灯直接在光感很强的桌面上反射出来的质感,很柔和。
保利茉莉公馆122平三居室现代风格林凤装饰的主卧室背景采用的是米灰色壁布,摸起来柔柔滑滑的,黑色的皮质床头,配搭黑色的衣柜柜体,及玻璃门板造成的反光,显得空间格外大。
保利茉莉公馆122平三居室现代风格林凤装饰的次卧室也就是儿童卧室,业主家是个小男孩,12岁,很有自己的想法,沟通起来喜欢的色彩很酷,背景是不规则的造型墙,搭配白色的柜子,黑色的台面,格外时尚。
精品设计案例
设计说明:
三室两厅一厨两卫,高层整体采用美式风格,色调以深色为主,体现美式的居家感和温馨感。
设计说明:
本案业主为年轻时尚小两口,所以我们考虑到未来想要给未来宝宝一个温馨舒适的一个房间,所以本案整体采用现代风格的手法,运用颜色,来打造整体空间的设计感及时尚感
设计说明:
本案以北欧风格为主题的设计,北欧风格能以现代、简洁、自然的特点俘获人心,所营造出来的生活氛围会让人倍感舒适与自在。
设计说明:
客户是一名成功人士,对于家的执念就是简单干净,客户衣服比较多,所以把每个空间都做了大衣柜,并且融入到设计里