立即预约 立即预约
免费定制整装家居

免费定制整装家居

一站置家 全程无忧 一省到底
hide.png

当前位置: 首页 > 装修案例效果图 > 碧桂园繁华里

碧桂园繁华里 150平 现代简约风格效果图

收藏
案例风格 现代简约 案例户型 三居 案例面积 150平米
楼盘名称 碧桂园繁华里 设计师 魏东超 案例类型 改善性住宅

设计理念:本案设计整体以现代风格为主导,为业主打造一个低调又不失个性的温暖之家 。

客厅
第1张
餐厅
第1张
卧室
第1张
第2张
第3张
第4张
卫生间
第1张
书房
第1张
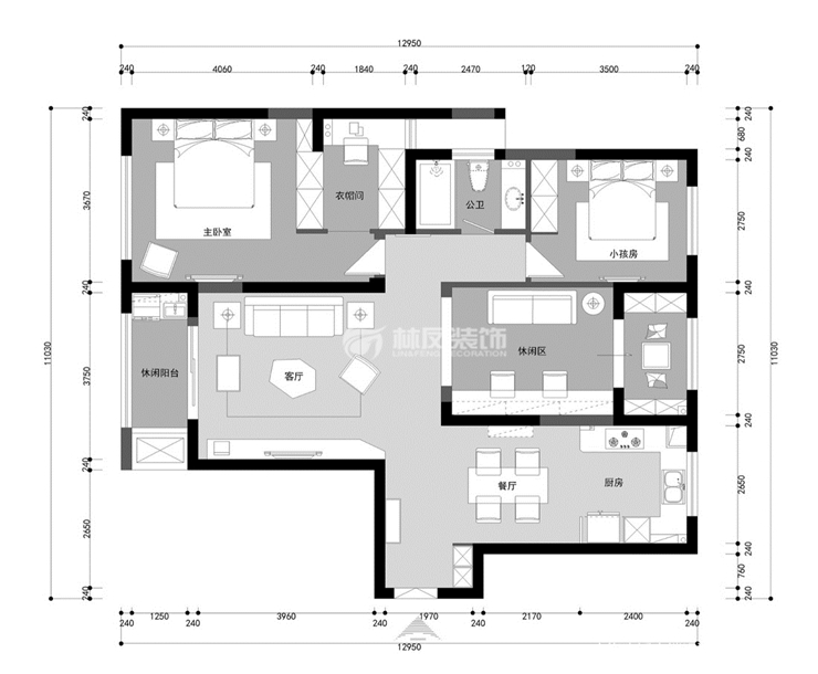
户型图
第1张
  • 案例详情

碧桂园繁华里-150-现代风格-客厅2_副本.jpg

碧桂园繁华里150平三室两厅现代风格林凤装饰的客厅以灰色的沙发尽显舒适惬意的休闲环境,背景墙摆放时尚挂画使整体空间不会过于沉默,增添时尚气息。

碧桂园繁华里-150-现代风格-餐厅.jpg

碧桂园繁华里150平三室两厅现代风格林凤装饰的餐桌椅以白色为主要色调,墙面运用了水墨画加以装饰,餐厅区域的白色与客厅的灰色相互融合,达到了良好的视觉效果。

碧桂园繁华里-150-现代风格-卧室.jpg 碧桂园繁华里-150-现代风格-卧室0.jpg 碧桂园繁华里-150-现代风格-卧室1.jpg 碧桂园繁华里-150-现代风格-卧室3.jpg

碧桂园繁华里150平三室两厅现代风格林凤装饰的卧室选用了灰色的墙面,与更具现代化的床相互呼应,达到一种极简的空间展现。

碧桂园繁华里-150平-现代风格-卫生间.jpg

碧桂园繁华里150平三室两厅现代风格林凤装饰的卫生间整体以白色为主,运用大理石纹理的台面,使整体空间更为开阔,不会因为过于紧闭而产生压迫感。

碧桂园繁华里-150-现代风格-卧室 (2).jpg 碧桂园繁华里-150平-现代风格-户型图.jpg

案例设计师

魏东超

设计师:魏东超

从业时间:14年

设计理念:在有限的空间里创造无限的可能

预约设计师

算算你家装修多少钱

报名即享丰厚赠品,品质装修

免费报价
咨询热线:400-656-9909
20190221103704574636.jpg

精品设计案例

20180612134930523248.jpg 服务号二维码.jpg