立即预约 立即预约
免费定制整装家居

免费定制整装家居

一站置家 全程无忧 一省到底
hide.png

当前位置: 首页 > 装修案例效果图 > 十里锦城

十里锦城 70平 北欧风格效果图

收藏
案例风格 北欧 案例户型 二居 案例面积 70平米
楼盘名称 十里锦城 设计师 慈英雪 案例类型 改善性住宅

设计理念:本设计方案以北欧风格为主,以明快的淡蓝色作为全屋主色调,提升了整个空间的温馨感觉,打造了一个浪漫的空间。

客厅
第1张
第2张
第3张
餐厅
第1张
卧室
第1张
第2张
卫生间
第1张
厨房
第1张
儿童房
第1张
第2张
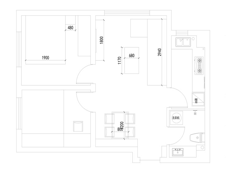
户型图
第1张
  • 案例详情

十里锦城-70平-北欧风格-客厅-首图.jpg 十里锦城-70平-北欧风格-客厅.jpg 十里锦城-70平-北欧风格-客厅1.jpg

十里锦城70平两室两厅北欧风格林凤装饰的女主人喜欢干净的感觉,所以客厅没有复杂的吊棚,只做了一圈叠级石膏线,客厅采用浅灰色地砖搭配淡蓝色的电视墙,整体干净温馨。

十里锦城-70平-北欧风格-餐厅.jpg

十里锦城70平两室两厅北欧风格林凤装饰的餐厅和厨房是连接在一起的,打破了传统的厨餐模式。

十里锦城-70平-北欧风格-卧室 (2).jpg 十里锦城-70平-北欧风格-卧室.jpg

十里锦城70平两室两厅北欧风格林凤装饰的卧室是休息的地方,原木色能让人感到心情舒畅,灰色调的床头背景搭配原木色的床头,使空间整体感更强,达到了业主想要的效果 。

十里锦城-70平-北欧风格-卫生间.jpg

十里锦城70平两室两厅北欧风格林凤装饰的卫生间整体采用了深浅搭配的墙地砖,搭配木色的浴室柜,两种颜色完美的结合在一起,使空间更具高级感。

十里锦城-70平-北欧风格-厨房.jpg

十里锦城70平两室两厅北欧风格林凤装饰的厨房主要以深灰色的地柜搭配白色吊柜,采用灰色墙砖,更加能突显图房主的品味。

十里锦城-70平-北欧风格-儿童房 (2).jpg 十里锦城-70平-北欧风格-儿童房.jpg

十里锦城70平两室两厅北欧风格林凤装饰的儿童房

十里锦城-70平-北欧风格-平面图.jpg

案例设计师

慈英雪

设计师:慈英雪

从业时间:8年

设计理念:做有情感的设计,做符合生活方式的设计,无限优化生活空间

预约设计师

算算你家装修多少钱

报名即享丰厚赠品,品质装修

免费报价
咨询热线:400-656-9909
20190221103704574636.jpg

精品设计案例

20180612134930523248.jpg 服务号二维码.jpg