立即预约 立即预约
免费定制整装家居

免费定制整装家居

一站置家 全程无忧 一省到底
hide.png

当前位置: 首页 > 装修案例效果图 > 中海寰宇

中海寰宇 100平 现代简约风格效果图

收藏
案例风格 现代简约 案例户型 二居 案例面积 100平米
楼盘名称 中海寰宇 设计师 林凤设计师 案例类型 改善性住宅

设计理念:设计来源于生活,生活因设计而改变。

客厅
第1张
第2张
第3张
餐厅
第1张
卧室
第1张
第2张
卫生间
第1张
厨房
第1张
门厅
第1张
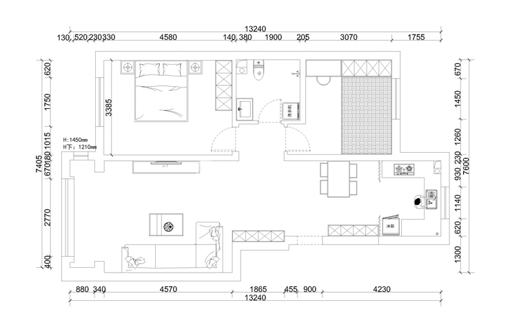
户型图
第1张
  • 案例详情

中海寰宇-100平-现代风格-电视背景墙.jpg 中海寰宇-100平-现代风格-首图.jpg 中海寰宇-100平-现代风格-沙发背景墙.jpg

中海寰宇100平两室两厅林凤装饰的客厅以现代风格为主轴线,整体家具的材质是胡桃木与白色烤漆,白色是干净的代表,同时能使空间显现的更加宽敞明亮,胡桃木首先的是他木质的纹理,感觉更亲近与自然,同时它的色彩偏深,平衡了黑与白之间的极端色彩,中和了室内的冷。软装的搭配,则是非常的有心计,灰色系的窗帘与橙色搭配,一冷一暖,使室内空间灵动,氛围活跃。

中海寰宇-100平-现代风格-餐厅.jpg

中海寰宇100平两室两厅现代风格林凤装饰的餐厅空间,白色的门厅柜,增加储物空间,搭配白色坐垫的餐椅,互为呼应,同时木纹色的餐桌呼应客厅空间,互动感极强。

中海寰宇-100平-现代风格-次卧.jpg 中海寰宇-100平-现代风格-主卧.jpg

【主卧室说明】卧室空间,淡灰色的墙面,搭配灰色系的床头,淡灰色得地板,整体灰色系,应该出一种深邃高端的既视感。

中海寰宇-100平-现代风格-卫生间.jpg

中海寰宇100平两室两厅现代风格林凤装饰的卫生间空间,淡灰色的墙地砖,大面积铺贴,增大卫生间空间感,同时搭配黑色金属材质的五金件,高端大气,干净整洁。

中海寰宇-100平-现代风格-厨房.jpg

中海寰宇100平两室两厅现代风格林凤装饰的厨房的墙砖为爵士白的墙砖,搭配上浅下深的橱柜配色,空间增加了层次感,白色的上柜,深色的下柜,橱柜的高端感极强。

中海寰宇-100平-现代风格-门厅.jpg

中海寰宇100平两室两厅现代风格林凤装饰的玄关

中海寰宇-100平-现代风格-平面图.jpg

案例设计师

林凤设计师

设计师:林凤设计师

从业时间:5年

设计理念:设计源于生活,生活因设计而改变,用有限的空间。做无限的设计,成就梦想之家。

预约设计师

算算你家装修多少钱

报名即享丰厚赠品,享半价装修

免费报价
咨询热线:400-656-9909
20190221103704574636.jpg

精品设计案例

20180612134930523248.jpg 服务号二维码.jpg