立即预约 立即预约
免费定制整装家居

免费定制整装家居

一站置家 全程无忧 一省到底
hide.png

当前位置: 首页 > 装修案例效果图 > 华润二十四城

华润二十四城 107平 轻奢风格效果图

收藏
案例风格 轻奢 案例户型 三居 案例面积 107平米
楼盘名称 华润二十四城 设计师 林凤设计师 案例类型 改善性住宅

设计理念:【设计理念】时尚,艺术,高品位,是现在90后的追求,而轻奢,是最好的体现,轻奢,以现代简约为基础,注重设计手法上的简洁大方,通过一些精致的软装元素去体现质感,从而体现风格。
【设计说明】整体风格以简约为主,空间宽敞明亮,动线清晰,搭配一些重色去调节空间色彩,用金属条去完善轻奢质感,搭配一些金属灯饰和配件,再配上木质元素,性感,大方

客厅
第1张
第2张
餐厅
第1张
卧室
第1张
第2张
卫生间
第1张
第2张
厨房
第1张
衣帽间
第1张
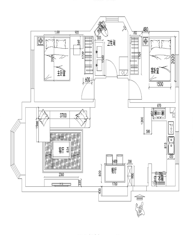
户型图
第1张
  • 案例详情

华润二十四城-107平-现代轻奢-客厅.jpg 华润二十四城-107平-现代轻奢-首图.jpg

华润二十四城107平三室两厅现代轻奢风格林凤装饰的客厅背景墙是地砖上墙搭配木质护墙板,高端大气,永不过时,用灰色搭配金属条使整个空间柔和,中性范儿十足,圆几的搭配使空间宽敞,动线好,显得大方也居住舒适

华润二十四城-107平-现代轻奢-餐厅.jpg

华润二十四城107平三室两厅现代轻奢风格林凤装饰的餐厅背景采用绿色壁纸搭配高挑装饰画,显大了空间,彰显了时尚,餐边柜的设计方便储存,白色平板门简洁大气,黑色的餐桌在绿色背景墙的衬托下,将时尚一览无余,用灰色的餐椅柔和空间色彩,黄色的满天星小巧精致。

华润二十四城-107平-现代轻奢-客卧.jpg 华润二十四城-107平-现代轻奢-主卧.jpg

【主卧室说明】 业本来主卧想给他们一个衣柜,女主坚决不要,就把男友的游戏桌放在了主卧,也行,他们开心就好,主卧的配色以柔和为主,黑色的皮床,原木色地板,用灰色墙面连接,床头金属线灯呼应整体风格;【次卧室说明】次卧暂时安排为客房,以温馨明亮为主,米色的布艺床,浅灰色的墙面,白色的衣柜,没有太多的颜色点缀。

华润二十四城-107平-现代轻奢-卫生间.jpg 华润二十四城-107平-现代轻奢-干湿分离.jpg

华润二十四城107平三室两厅现代轻奢风格林凤装饰的卫生间采用干湿分离,增加使用便捷性,墙面浅灰搭配花片,让卫生间显得没那么无趣,黑色玻璃框个性,时尚,绿植为卫生间增添生机。

华润二十四城-107平-现代轻奢-厨房.jpg

华润二十四城107平三室两厅现代轻奢风格林凤装饰的厨房,似乎90后的年轻人对厨房要求都不高,水槽,烟机炉具对于他们已经是很多的存在,但吧台一定要有,女主说一直有个吧台梦,好吧,我给你实现。

华润二十四城-107平-现代轻奢-衣帽间.jpg

华润二十四城107平三室两厅现代轻奢风格林凤装饰的衣帽间

华润二十四城-107平-现代轻奢-平面图.jpg

案例设计师

林凤设计师

设计师:林凤设计师

从业时间:5年

设计理念:为生活而设计,设计源于懂生活

预约设计师

算算你家装修多少钱

报名即享丰厚赠品,享半价装修

免费报价
咨询热线:400-656-9909
20190221103704574636.jpg

精品设计案例

20180612134930523248.jpg 服务号二维码.jpg