立即预约 立即预约
免费定制整装家居

免费定制整装家居

一站置家 全程无忧 一省到底
hide.png

当前位置: 首页 > 装修案例效果图 > 紫提东郡

紫提东郡 93平 现代简约风格效果图

收藏
案例风格 现代简约 案例户型 三居 案例面积 93平米
楼盘名称 紫提东郡 设计师 林凤设计师 案例类型 改善性住宅

设计理念:本案风格主要以简约奢华为主,随着现代年轻人的时尚追求,对于家具和格局空间的要求更加简洁化。清新简约的原木色家具搭配简单干净的墙面。

客厅
第1张
第2张
第3张
餐厅
第1张
第2张
卧室
第1张
第2张
厨房
第1张
门厅
第1张
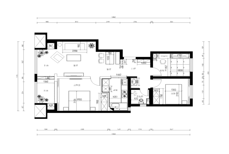
户型图
第1张
  • 案例详情

紫提东郡-93平-现代风格 客厅1.jpg 紫提东郡-93平-现代风格 客厅2.jpg 紫提东郡-93平-现代风格 首图.jpg

紫提东郡93平3居室现代风格林凤装饰的客厅的空间不是很大,因为三居室的空间,客厅空间不是很大,简单的组合布艺沙发,电视背景墙也没有做过多造型。阳台的空间封进来和客厅打通更加的实用。

紫提东郡-93平-现代风格 餐厅1.jpg 紫提东郡-93平-现代风格 餐厅2.jpg

紫提东郡93平3居室现代风格林凤装饰的餐厅的空间非常的实用,原木色的餐桌餐椅和客厅的家具很好的搭配呼应,餐厅的吊灯非常的有个性,符合客户的要求。餐桌背景墙放了一组简约大方的装饰画,空间更加的高大上。

紫提东郡-93平-现代风格 次卧.jpg 紫提东郡-93平-现代风格 主卧.jpg

紫提东郡93平3居室现代风格林凤装饰的主卧室的空间对灯光的要求需要暖一些多一些辅助光源,不需要主灯,主卧靠窗的位置想做一个飘窗,主卧室有一个衣柜配胡桃木颜色的柜体。比较厚重高档一些。

紫提东郡-93平-现代风格 厨房.jpg

紫提东郡93平3居室现代风格林凤装饰的厨房的橱柜空间是L型的,一部分被洗衣机占据了,所以空间不是特别大,客户喜欢整体颜色明亮一些,以灰色调为主,所以选择跟其他家居空间相似的浅色材质。看起来更搭配一些。

紫提东郡-93平-现代风格 门厅.jpg

紫提东郡93平3居室现代风格林凤装饰的玄关

紫提东郡-93平-现代风格 平面方案.jpg

案例设计师

林凤设计师

设计师:林凤设计师

从业时间:6年

设计理念:一切随心,用心去感悟空间

预约设计师

算算你家装修多少钱

报名即享丰厚赠品,享半价装修

免费报价
咨询热线:400-656-9909
20190221103704574636.jpg

精品设计案例

20180612134930523248.jpg 服务号二维码.jpg