立即预约 立即预约
免费定制整装家居

免费定制整装家居

一站置家 全程无忧 一省到底
hide.png

当前位置: 首页 > 装修案例效果图 > 金地铁西谭府

金地铁西谭府 88平 轻奢风格效果图

收藏
案例风格 轻奢 案例户型 二居 案例面积 88平米
楼盘名称 金地铁西谭府 设计师 林凤装饰精英设计师 案例类型 改善性住宅

设计理念:本案为现代轻奢风格,通过整体简洁的线条感,颜色的明暗对比来彰显年轻人特有的时尚气息。

客厅
第1张
第2张
第3张
第4张
第5张
餐厅
第1张
卧室
第1张
第2张
厨房
第1张
门厅
第1张
第2张
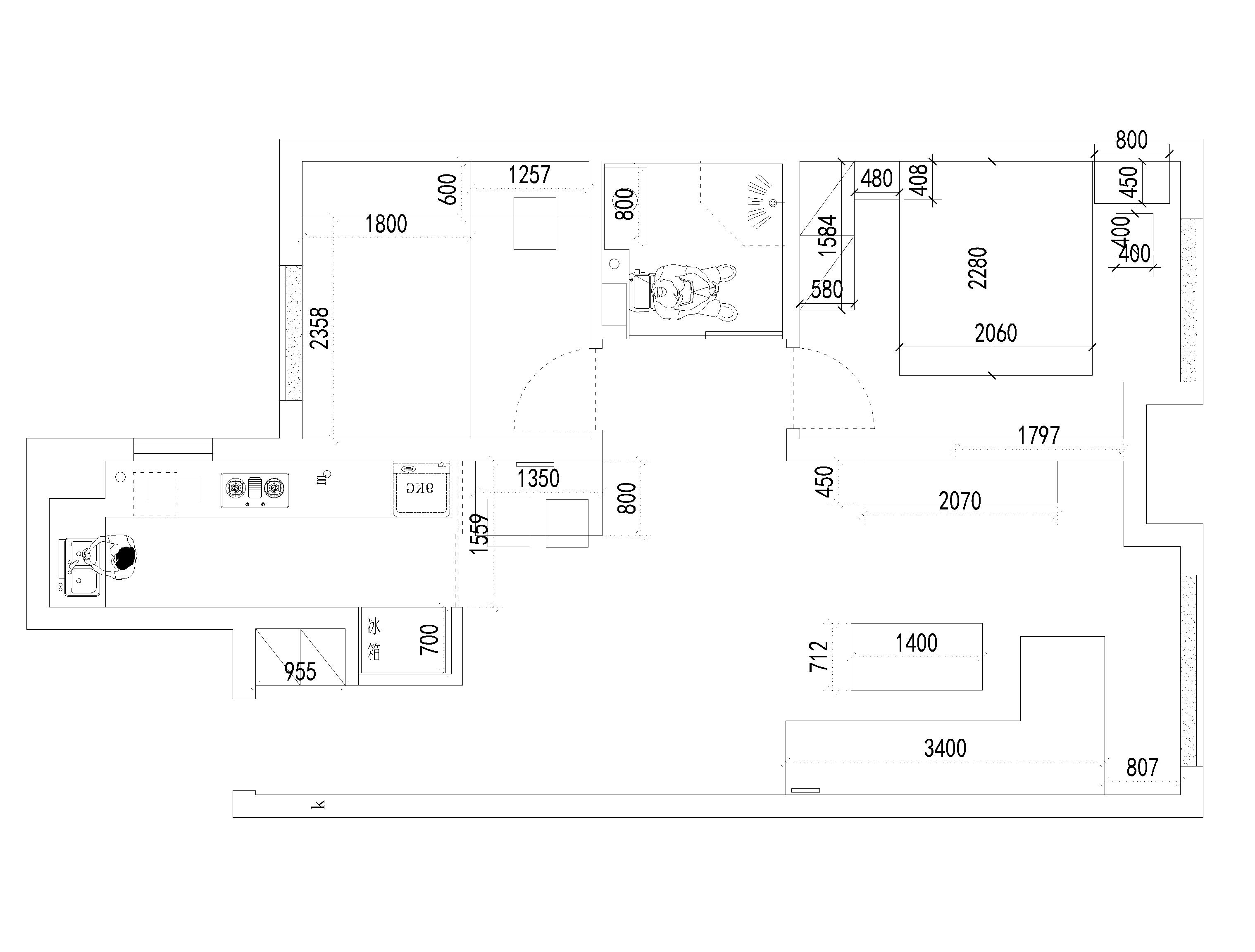
户型图
第1张
  • 案例详情

金地铁西谭府-现代轻奢-客厅.jpg 金地铁西谭府-现代轻奢-客厅-01.jpg 金地铁西谭府-现代轻奢-客厅02.jpg 金地铁西谭府-现代轻奢-客厅-首图.jpg 金地铁西谭府-现代轻奢-客厅03.jpg

金地铁西谭府88平2居室现代轻奢风格林凤装饰的客厅采用质感柔和的灰色地砖作为地面的主要材质,再结合沙发墙电视墙的颜色变化,让客厅空间充满空间的立体感,顶面简洁的直线边棚,即起到空间分区的作用,又增加了整个空间的照明方式,通过暖色的筒灯和LED灯带营造温馨的氛围。

金地铁西谭府-现代轻奢-餐厅.jpg

金地铁西谭府88平2居室现代轻奢风格林凤装饰的餐厅位于厨房的门口,餐桌采用横向放置,即满足两人用餐需求,也解决了空间动线的拥挤,墙上别致的壁灯更是增添了用餐时的情调。

金地铁西谭府-现代轻奢-卧室.jpg 金地铁西谭府-现代轻奢-卧室01.jpg

金地铁西谭府88平2居室现代轻奢风格林凤装饰的卧室的整体色彩采用冷暖对比色,温馨浪漫中又增添了几分清澈,床头的悬垂灯和情面的壁灯设计充当夜灯的角色,晚间看电视和用手机也更有浪漫氛围。

金地铁西谭府-现代轻奢-厨房01.jpg

金地铁西谭府88平2居室现代轻奢风格林凤装饰的厨房采用简洁的L型橱柜,整体风格延续客厅的风格,简洁大方,嵌入式洗碗机的设计让生活方式更加的简单,再也不用烦恼吃完饭谁刷碗啦,脏活累活交给它吧。

金地铁西谭府-现代轻奢-玄关.jpg 金地铁西谭府-现代轻奢-玄关01.jpg

金地铁西谭府88平2居室现代轻奢风格林凤装饰的玄关

金地铁西谭府-现代轻奢-平面图.jpg

案例设计师

林凤装饰精英设计师

设计师:林凤装饰精英设计师

从业时间:9年

设计理念:艺术充满生活 设计无处不在

预约设计师

算算你家装修多少钱

报名即享丰厚赠品,享半价装修

免费报价
咨询热线:400-656-9909
20190221103704574636.jpg

精品设计案例

20180612134930523248.jpg 服务号二维码.jpg