立即预约 立即预约
免费定制整装家居

免费定制整装家居

一站置家 全程无忧 一省到底
hide.png

当前位置: 首页 > 装修案例效果图 > 中海城尚城

中海城尚城 136平 轻奢风格效果图

收藏
案例风格 轻奢 案例户型 三居 案例面积 136平米
楼盘名称 中海城尚城 设计师 林凤装饰全案设计师 案例类型 改善性住宅

设计理念:本案是四口之家居住,要求以现代为主,搭配轻奢元素。

客厅
第1张
第2张
第3张
餐厅
第1张
第2张
卧室
第1张
第2张
卫生间
第1张
儿童房
第1张
过廊
第1张
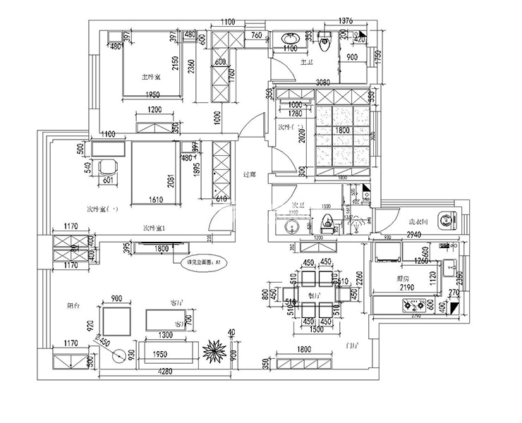
户型图
第1张
  • 案例详情

中海城尚城-136平-现代轻奢风格-客厅2.jpg 中海城尚城-136平-现代轻奢风格-客厅3.jpg 中海城尚城-136平-现代轻奢风格-客厅首图.jpg

中海城尚城136平2居室现代轻奢风格林凤装饰的客厅区域设计了吸光灯带,使空间看起来充满温馨浪漫气息。电视背景墙采用地砖上墙,达到突出背景墙效果,地面的波打线将区域做到了明显划分。

中海城尚城-136平-现代轻奢风格-餐厅.jpg 中海城尚城-136平-现代轻奢风格-餐厅2.jpg

中海城尚城136平2居室现代轻奢风格林凤装饰的餐厅设计了端景,增强了艺术感,装饰画与餐椅颜色呼应。

中海城尚城-136平-现代轻奢风格-卧室.jpg 中海城尚城-136平-现代轻奢风格-卧室2.jpg

中海城尚城136平2居室现代轻奢风格林凤装饰的主卧卧室采用了护墙板设计,大方现代感十足。儿童房以黄色壁纸将房间很好的映衬出来,非常童趣温馨。

中海城尚城-136平-现代轻奢风格-卫生间.jpg

中海城尚城136平2居室现代轻奢风格林凤装饰的卫生间利用瓷白色砖,使整体看起来十分清新自然。

中海城尚城-136平-现代轻奢风格-儿童房.jpg

中海城尚城136平2居室现代轻奢风格林凤装饰的儿童房

中海城尚城-136平-现代轻奢风格-过廊.jpg

中海城尚城136平2居室现代轻奢风格林凤装饰的过廊

中海城尚城-136平-现代轻奢风格-平面图.jpg

案例设计师

林凤装饰全案设计师

设计师:林凤装饰全案设计师

从业时间:15年

设计理念:人可以改变环境,环境可以影响人,而设计则可以改变人和环境;设计是一种感受、一种心态、一种舒适的、开心的生活方式

预约设计师

算算你家装修多少钱

报名即享丰厚赠品,品质装修

免费报价
咨询热线:400-656-9909
20190221103704574636.jpg

精品设计案例

20180612134930523248.jpg 服务号二维码.jpg