立即预约 立即预约
免费定制整装家居

免费定制整装家居

一站置家 全程无忧 一省到底
hide.png

当前位置: 首页 > 装修案例效果图 > 华润24城

华润24城 104平 现代简约风格效果图

收藏
案例风格 现代简约 案例户型 二居 案例面积 104平米
楼盘名称 华润24城 设计师 林凤装饰全案设计师 案例类型 改善性住宅

设计理念:现代风格以简约,及自然为主。简约但不简单,将空间合理利用才是合理的设计。

客厅
第1张
第2张
餐厅
第1张
卧室
第1张
第2张
卫生间
第1张
第2张
厨房
第1张
阳台
第1张
儿童房
第1张
第2张
过廊
第1张
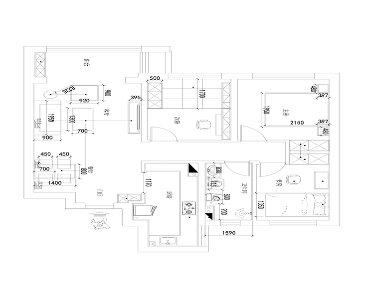
户型图
第1张
  • 案例详情

华润二十四城-104平-现代风格-客厅首图.jpg 华润二十四城-104平-现代风格-客厅 (3).jpg

华润24城104平2居室现代风格林凤装饰的客厅没有做造型吊顶,搭配了简洁的石膏线,电视背景墙用了深灰色设计,增强了空间的层次感漆,搭配暖白色沙发及黄色抱枕,营造出现代,浪漫的氛围。地面选择白色瓷砖,使客厅看起来明亮,大方。

华润二十四城-104平-现代风格-餐厅.jpg

华润24城104平2居室现代风格林凤装饰的餐厅选用了四人方桌,十分规整,照片墙的规则排列,即整齐又不失艺术感,各种绿植的搭配使得餐厅充满活力。

华润二十四城-104平-现代风格-卧室 (2).jpg 华润二十四城-104平-现代风格-卧室.jpg

华润24城104平2居室现代风格林凤装饰的卧室以温馨为主,选用暗色壁纸,营造浪漫幽静的感觉。

华润二十四城-104平-现代风格-卫生间 (2).jpg 华润二十四城-104平-现代风格-卫生间.jpg

华润24城104平2居室现代风格林凤装饰的卫生间以简洁为主,爵士白墙砖看起来十分干净。充满现代效果,简洁明快。

华润二十四城-104平-现代风格-厨房.jpg

华润24城104平2居室现代风格林凤装饰的U型橱柜,使厨房的空间发挥到极致,并且东线流畅,功能分区细致,储藏空间丰富。

华润二十四城-104平-现代风格-阳台.jpg

华润24城104平2居室现代风格林凤装饰的阳台

华润二十四城-104平-现代风格-儿童房 (2).jpg 华润二十四城-104平-现代风格-儿童房.jpg

华润24城104平2居室现代风格林凤装饰的儿童房

华润二十四城-104平-现代风格-过廊.jpg

华润24城104平2居室现代风格林凤装饰的过廊

华润二十四城-104平-现代风格-平面.jpg

案例设计师

林凤装饰全案设计师

设计师:林凤装饰全案设计师

从业时间:15年

设计理念:人可以改变环境,环境可以影响人,而设计则可以改变人和环境;设计是一种感受、一种心态、一种舒适的、开心的生活方式

预约设计师

算算你家装修多少钱

报名即享丰厚赠品,享半价装修

免费报价
咨询热线:400-656-9909
20190221103704574636.jpg

精品设计案例

20180612134930523248.jpg 服务号二维码.jpg