立即预约 立即预约
免费定制整装家居

免费定制整装家居

一站置家 全程无忧 一省到底
hide.png

当前位置: 首页 > 装修案例效果图 > 富力尚悦居

富力尚悦居 80平 北欧风格效果图

收藏
案例风格 北欧 案例户型 二居 案例面积 80平米
楼盘名称 富力尚悦居 设计师 林凤装饰全案设计师 案例类型 改善性住宅

设计理念:本案是以原木为主,搭配其他点缀色进行。将北欧风格特有的干净舒适尽可能的体现出来,营造清新怡然的生活氛围。

客厅
第1张
第2张
第3张
餐厅
第1张
第2张
卧室
第1张
厨房
第1张
第2张
过廊
第1张
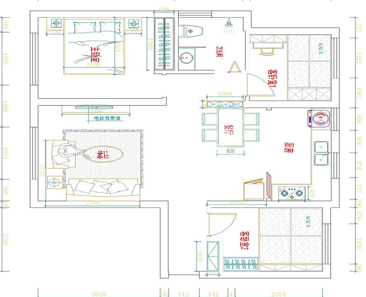
户型图
第1张
  • 案例详情

富力尚悦居-80平-北欧风格-客厅2.jpg 富力尚悦居-80平-北欧风格-客厅3.jpg 富力尚悦居-80平-北欧风格-客厅首图.jpg

富力尚悦居80平2居室北欧风格林凤装饰的客厅两侧直线边棚,使空间有拉伸感,暖白色布艺沙发体现了自然温馨感,蓝色背景墙使整体空间更加舒适。吊灯也采用了北欧风格的水晶吊灯,让空间更加和谐统一。

富力尚悦居-80平-北欧风格-餐厅.jpg 富力尚悦居-80平-北欧风格-餐厅2.jpg

富力尚悦居80平2居室北欧风格林凤装饰的餐厅的设计采用了传统的四人餐桌,但是在色彩上别出心裁。浅黄色餐椅使餐厅看起来活泼,欢快,彰显现代时尚感。

富力尚悦居-80平-北欧风格-卧室.jpg

富力尚悦居80平2居室北欧风格林凤装饰的卧室床头大面积风景画,将北欧风格的自然韵味展现的淋漓尽致,棚面的石膏线条十分简洁,原木色的地板和整体空间相呼应。使人的居住环境更加怡然舒适。

富力尚悦居-80平-北欧风格-厨房.jpg 富力尚悦居-80平-北欧风格-厨房2.jpg

富力尚悦居80平2居室北欧风格林凤装饰的厨房采用U型厨房设计,墙面砖选暖色,黑框推拉门设计更加体现层次感,将空间做了很好的区域划分,颇具实用性。

富力尚悦居-80平-北欧风格-过廊.jpg

富力尚悦居80平2居室北欧风格林凤装饰的走廊

富力尚悦居-80平-北欧风格-平面.jpg

案例设计师

林凤装饰全案设计师

设计师:林凤装饰全案设计师

从业时间:15年

设计理念:人可以改变环境,环境可以影响人,而设计则可以改变人和环境;设计是一种感受、一种心态、一种舒适的、开心的生活方式

预约设计师

算算你家装修多少钱

报名即享丰厚赠品,品质装修

免费报价
咨询热线:400-656-9909
20190221103704574636.jpg

精品设计案例

20180612134930523248.jpg 服务号二维码.jpg